BIG与Goody Clancy公司为马萨诸塞大学安姆斯特分校设计了全新的商业创新中心。该中心位于校园的核心地带,为既有的伊森伯格管理学院(全美排名前30的公立商学院)增加了7万平方英尺的高协作性的学习和社交空间。
经过此次的扩建和部分翻新,伊森伯格管理学院的既有空间增加了近1倍,适应了学院在过去十年间的发展,同时为学校的150多名教职人员和5000名本科、硕士及博士生提供了新的设施。BIG和Goody Clancy在2015年接受设计委托,旨在为伊森伯格学院的学生们打造一个灵活的、能够激发并促进合作的空间。

鸟瞰图 ©Laurian-Ghinitoiu

设计示意图 ©BIG
在位于校园入口附近的Haigis Mall的显眼位置,建筑通过多米诺骨牌效应形成了一个独特的三角形玻璃入口立面。建筑外部以缓缓向下倾斜的直角立柱包覆,在不使用任何弯曲元素的情况下形成独特的观感。
商业创新中心直接将1964年的既有建筑向北面和东面扩展为一个大尺度的圆形环路,并从背面连接至建筑的顶部楼层,从而保持空间的连贯性。环形体量将伊森伯格学院的教职员工汇聚在同一个屋檐下,在创造一体化中心场所的同时也为整个学院赋予了鲜明的视觉形象。
商业创新中心的外观以铜质饰面包覆,长时间的暴露状态会使黑赭石色的金属表面焕发出持久的光泽。基于对耐久性和可持续性的考虑,建筑还致力于获得LEED的银级认证。

从入口广场望向建筑 ©Laurian-Ghinitoiu

建筑外部以缓缓向下倾斜的直角立柱包覆,在不使用任何弯曲元素的情况下形成独特的观感 ©Laurian-Ghinitoiu

长时间的暴露状态会使黑赭石色的铜质表面焕发出持久的光泽 ©Max Touhey

多米诺骨牌效应形成了一个独特的三角形玻璃入口立面 ©Max Touhey
进入建筑之后,学生和教师将置身于5000平方英尺的“学习共享空间”。阳光从手风琴般的立柱间照亮多楼层的中庭,这里作为商学院的核心地带,为学生们提供了充足的学习、交流以及用餐的空间。
明亮而宽敞的学习共享空间同时还可作为活动场地使用,例如举办演讲、颁奖典礼、宴会和招聘会等。使用者在任何房间乃至走廊内都能够感受到来自校园和内部庭院的自然光线。

阳光从手风琴般的立柱间照亮多楼层的中庭 ©Max Touhey

学习共享空间 ©Max Touhey

室内细部 ©Laurian-Ghinitoiu
整个中心的空间设计充分考虑了学生之间互动、合作以及偶遇的可能:走廊上摆放着舒适的椅子,大楼梯上安装了长椅,教室内的椅子还能够灵活组合,以适应讲座和小组活动。
二层和三层主要包含创新实验室、咨询空间和教师办公室。为了支持每个学生的职业发展,每间教师还配备了远程学习的技术系统。此外,“职业捕获中心”(Chase Career Center)的15间面试室、不同的会议室和休息空间被分布在整个环形体量当中。

大楼梯上安装了长椅 ©Max Touhey

教室能够适应讲座和小组活动 ©Max Touhey
扩建部分的室内空间面向一个圆形的庭院,开放式花园和长椅为合作与思考创造了理想的绿洲。
介于既有建筑和商业创新中心之间的两条路径将庭院与校园相连,而这两栋建筑又通过路径上方的两座桥梁形成融合:体积较大的“铜桥”提供了通向庭院的通道,而较小的“玻璃桥”则从视觉上连接了内部庭院周围的空间。

创新中心与既有教学楼 ©Laurian-Ghinitoiu

新旧建筑相互融合 ©Laurian-Ghinitoiu
当夜幕降临,商业创新中心将通过其内部的活跃氛围点亮整个校园,犹如一座迷人的灯塔,为学院的来访者、教师和学生留下持续而不可磨灭的印象。

夜间视角 ©Laurian-Ghinitoiu

建筑模型 ©BIG

场地平面图 ©BIG

首层平面图 ©BIG

2层平面图 ©BIG

3层平面图 ©BIG

西立面图 ©BIG

北立面图 ©BIG

东立面图 ©BIG

南立面图 ©BIG

南北剖面图 ©BIG

中庭轴线剖面图 ©BIG

立面结构示意 ©BIG

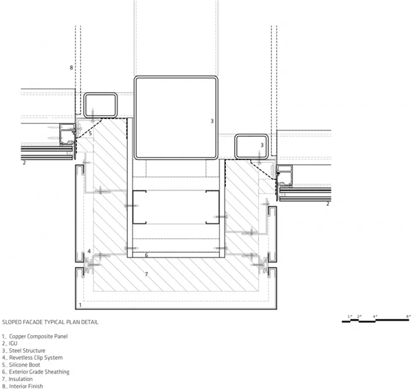
立面细部平面 ©BIG
文章来源于谷德设计网,如有侵权,联系删除。
网友评论
(共 0条)查看全部