
© Åke E:son Lindman
基地位于KTH校园内,周围有着非常鲜活的文化和历史氛围,但其自身也存在一定局限性。新学院坐落于现有庭院内,周围有现成道路,与其毗邻的是20世纪初由 Erik Lallerstedt 设计的红砖建筑。

© Åke E:son Lindman

© Åke E:son Lindman
基于自由校园布局的考虑,其设计理念是鼓励学生在建筑内及周边多进行交流,以此让新学院与基地更好地交融。

© Åke E:son Lindman

© Åke E:son Lindman

© Åke E:son Lindman
学校建筑外形圆润,共有六层,包括一个下沉式花园和一个屋顶平台,同时以庭院作为空间的外部延申。深红色柯尔滕钢外墙与现有建筑的暗红色砖墙交相呼应。

© Åke E:son Lindman

© Åke E:son Lindman
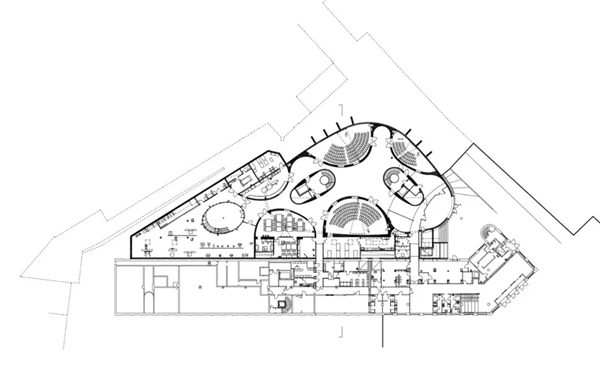
室内设计贴合要求且十分灵活。弧形墙面创造了一个自由流动的连续空间,营造了开放性的氛围。景观和路径穿过结构得以延伸,使其空间感更类似于景观而不是传统学院建筑。

© Åke E:son Lindman

© Åke E:son Lindman
建筑师在入口一层设置了一系列两层通高的工作室和展览区,宽敞的主入口同时也可以作为一个开放的演讲厅。这些空间组成了一条蜿蜒穿过建筑物的宽阔通道。

© Åke E:son Lindman

© Åke E:son Lindman
大进深的平面需要在建筑立面设置大面积开窗。这为建筑带来了诸多好处,提供了充足的采光和通透的视野,同时保证了整个建筑具有适宜的物理环境和高能效。

© Åke E:son Lindman

© Åke E:son Lindman
项目图纸

总平面图




平面图

分析图

立面细节图


模型照片
文章来源于建日筑闻,如有侵权,联系删除。
网友评论
(共 0条)查看全部