怡景湾——宛若春华
设计说明:
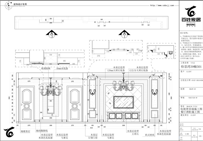
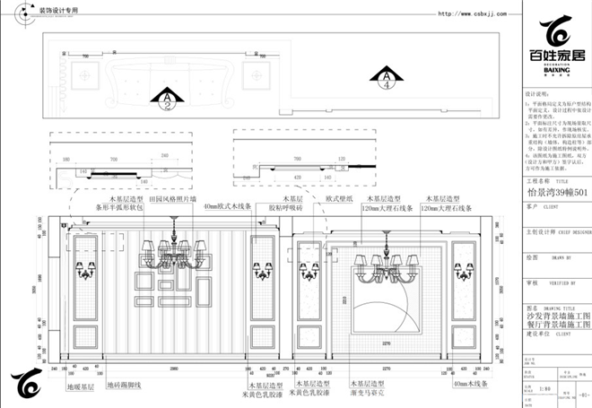
A、作品对业主居住需求、生活价值的独特挖掘角度:本案坐落于常熟市虞山北路上的怡景湾。雍容华贵的古典法式外建筑造型,让坐拥虞城这个繁华美丽都市的怡景湾成为了众多高端别墅群中一颗不可多得的璀璨舒适的家居住所B、作品在环境风格上的设计创新点:方案风格定位为法式田园风格,世界上只有一个地方,可以让你在乡野的晨光中优雅地醒来,聆听风拂过窗纱的沙沙轻响,感受花草的生机与活力。这就是普罗旺斯的生活,每一个人心中梦想的地方。C、作品在空间布局上的设计创新点:居室外的蓝天白云和鸡冠花点缀着小径,斑驳的墙面、赭红色的屋顶、让你的梦想稳稳地落在这恬静悠闲的居室中。自门厅步入客厅中,立即融进一种柔和的色彩中,淡米色、浅咖、赭红,在这里交替,浅黄色墙面、呼吸砖和马赛克,将中世纪的普罗旺斯的历史感朦胧的呈现出来,而又潜藏着现代气息的缩影。D、作品在设计选材上的设计创新点:此项目的设计灵感来自于建筑设计师的巧意构思,居室空间的装饰风格具备了新的意涵与韵律节奏,使整体都具备了灵气与庄重的雅致感,法式建筑有着异于寻常的特殊性格。E、作品在业主使用后的出众效果与评价:运用一系列的设计手法,来展现一种介于传统法式建筑与果敢的法式田园风格之间的微妙平衡。查看李建华的古韵美利坚 。
案例名称:怡景湾——宛若春华
案例投资总额:50万元
作者:李建华
设计类型:室内设计
案例类型:别墅
案例所在地:江苏 苏州市
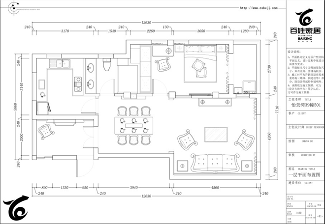
案例面积:200平方米
详细地址:江苏省常熟市常熟虞山北路688号
怡景湾——宛若春华-图1

怡景湾——宛若春华-图2

怡景湾——宛若春华-图3

怡景湾——宛若春华-图4

怡景湾——宛若春华-图5

怡景湾——宛若春华-图6

怡景湾——宛若春华-图7

怡景湾——宛若春华-图8

怡景湾——宛若春华-图9

怡景湾——宛若春华-图10

怡景湾——宛若春华-图11

怡景湾——宛若春华-图12

怡景湾——宛若春华-图13

怡景湾——宛若春华-图14

怡景湾——宛若春华-图15
怡景湾——宛若春华-图16

怡景湾——宛若春华-图17

怡景湾——宛若春华-图18

怡景湾——宛若春华-图19

怡景湾——宛若春华-图20

网友评论
(共 0条)查看全部