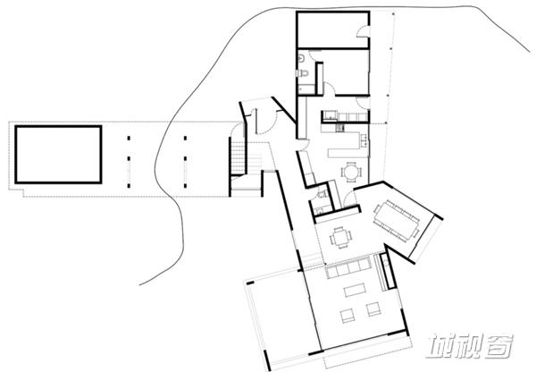
在面向南太平洋的海岸边,由圣地亚哥大地建筑事务所(LAND arquitectos)的设计师们精心建造了一座“海景别墅”。该住宅分为上下两层,内部视野宽阔,在此处可以观赏到智利广阔无垠的海岸线。台北表演艺术中心建成
别墅周边的岩石被设计师巧妙地利用,全部都以相同的方式围绕着房子周围一层层如楼梯般的堆叠起来,这样不仅有了室外楼梯,而且高出建筑的岩石可以为别墅遮蔽曝晒、阻挡海风。别墅外墙的颜色与海岸边崎岖的礁石色彩相接近,显得更加融入自然。设计师用钢筋混凝土预制板建造的外墙结构,为别墅提供了高绝缘性能,而且特别经久耐用,同时还具备抗腐蚀浸润的能力。

海景别墅图一

海景别墅图二

海景别墅图三

海景别墅图四

海景别墅图五

海景别墅图六

海景别墅图七

海景别墅图八

海景别墅图九

海景别墅图十

海景别墅图十一

海景别墅图十二

海景别墅图十三

海景别墅图十四

海景别墅图十五

海景别墅图十六

海景别墅图十七

海景别墅图十八

海景别墅图十九
网友评论
(共 0条)查看全部