美丽乡村的实行,为各乡镇街道带来了更好的环境面貌。乡政府亦希望用极小的代价改造老村的建筑,让老房子有所依,与村为伴。老房子的新生可以再造价值,满足乡村现代发展的同时,也不失传统老村的生命力。
以下,城视窗精选部分经典“乡建焕新”作品,以飨读者,该系列之后还会不定期更新,请大家关注。
▼项目外观

步路乡 · 梅湖
步路乡距仙居县城关7公里,灵江上游永安溪从北陲蜿延而过。步路之名,因该村群山环抱,地处峡谷之口,谷深百余里,自古以来,一条垒石大路过村前,成为山里人步行到达县城的必经之路,所以称步路村。
▼鸟瞰,项目位于村落中

▼区位分析

在现场调研中,了解到孩子们缺少课后的学习空间;村民缺少闲聚的交流场所;当地非遗的剪纸艺术缺少工作与展示的场地。因此选择两栋梅湖边的建筑进行改建,在满足步路乡以上方面需求的同时,也希望修建后的房子能融入村民的生活,成为梅湖沿岸的标识与规划环湖主路上的两个特色建筑。
▼改造后的建筑远景

拆建·改建
作为剪纸艺坊的“老建筑”其实是一座重建不久的新院子,不过难以使用,需要在此基础之上做进一步的修整,在整体预算得到控制的情况下使得之前的投入得到有效的利用。另一栋书吧则选择放置在湖岸街角的节点处,位于环湖游线的重要位置,在村交通的主流线上接纳更多的人群,以便于往来的村民随时可以来此看书品茶、休闲交流。
▼两栋改造建筑位置分析,(1)剪纸艺坊 /(2)湖畔书吧

▼设计意向图

剪纸艺坊
剪纸艺坊原为一层砖木混合建筑,拥有一个长进深的不规则前院,院墙紧贴梅湖,却独自封闭。作为容纳步路乡非遗民间艺术的建筑,不应仅仅作为一种收纳传统物质的容器存在,而需呈现属于当地的剪纸艺术。设计尝试打破原来的封闭院墙,以格栅过滤景致形成剪影式的视觉效果,院内可观梅湖,于对岸则可隐约窥得院内的动态。
▼剪纸艺坊外观

▼设计概念,剪影式视觉效果

院落被一分为二,形成前院与庭院,剪纸展厅位于二者中间,延续至院墙朝向梅湖敞开,像似对于梅湖的延伸与接纳。展亭与院墙格栅的交界洞口处设置了一条长凳,供沿路的人坐下休息,一同观赏些梅湖的景色。到访者经过两进的院落,再进入剪纸艺者工作室。途中可看到立面格栅旋转后形成的不同观感,体验犹如剪纸叙述般的场景,以了解体会当地的风貌和剪纸工艺。
▼模型,艺坊空间分析

▼从展亭看向艺坊

▼格栅增加空间的层次

▼室外休息空间

▼艺坊室内空间

▼古老的木屋架

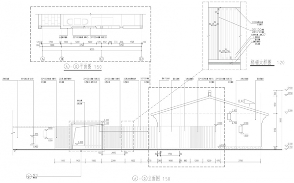
▼艺坊立面图

伴湖书吧
作为书吧修建的老房子较为陈旧,传统木结构抬梁体系的局部已开始出现不稳定,维护与改建更近似于一种材料的回收与利用。设计时取一个“伴”字,一方面意为这栋空置的老建筑能够重新陪伴当地村民,提供他们理想的生活空间;另一方面取其半材,将老墙做一半破壁形成建筑的基座,往上置换了已经老化的主体木结构,通过现代的开窗方式表达对于当代生活的接纳。
▼书吧模型

▼从书吧可以看到不同方向的景色

▼书吧功能空间分析

▼书吧平面图

▼书吧剖面图

项目名称:老梅湖的新建筑——剪纸艺坊&伴湖书吧
设计:杭州森上建筑设计
项目设计&完成年份:2018.04-2019.01
主要设计团队:章钧添 孙鸿斐
项目地址:浙江仙居
建筑面积:600㎡
摄影版权:邱日培
客户:步路乡政府
网友评论
(共 0条)查看全部