美丽乡村的实行,为各乡镇街道带来了更好的环境面貌。乡政府亦希望用极小的代价改造老村的建筑,让老房子有所依,与村为伴。老房子的新生可以再造价值,满足乡村现代发展的同时,也不失传统老村的生命力。
以下是城视窗精选部分经典“乡建焕新”作品的第二个项目,以飨读者,该系列之后不定期更新,请大家关注。
项目二
奇峰村史馆,安徽
安徽省池州市石台县的奇峰村,位于牯牛降风景区的山腰。第一次去现场,便是坐车沿陡峭的盘山路绕了一个多小时进的村。村口高耸着两株银杏,胸径目测需2-3人合抱;据说有千年树龄。村前一片平整的农田, 种着一人多高的庄稼;白墙黑瓦的农宅依山而建,奇峰村便逐渐隐退至山间竹林里。
▼奇峰村全貌

▼东南角全景

▼西南角屋顶

队屋曾经是奇峰村生产大队的公共用房。室内有两层,现如今随着农村的凋敝, 一层成了临时车库,二层因年久失修漏雨而空置。但在杂物的间隙中,仍能看到木柱底部考究的石柱础,也能在瓦片漏光的二楼,近距离观察到木屋架中清晰的榫卯木作。这些榫卯木构,应该是当年本地工匠的杰作,木梁、木椽子,还留着加工前树干的曲线轮廓,榫孔卯头虽然看起来雕刻得随意、没有装饰,却也合乎木作原理,多数都未糟朽损坏,仍可堪用。
▼改造前建筑外观

▼改造后东北角内街夜景

这样的房子对于设计师正是可打磨的璞玉。安徽的古村落与自然有些天然的默契,布局上切合地形,道路和排水体系应地就势,建造规模也多紧凑合宜,不多占农田绿地。
在这样对自然敬畏和对自我克制的徽派哲学里,更新古村的最好方式,便是将留存的队屋,通过整修和适度改造,重新服务于村里的现代生活。此为“无建斯建”。
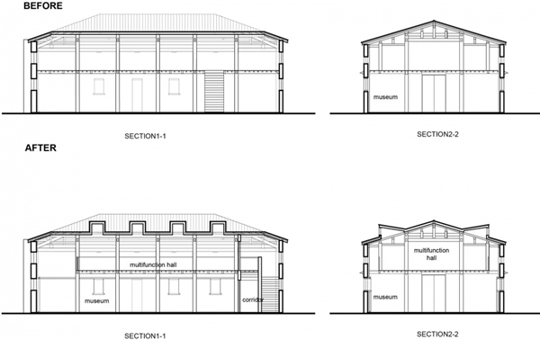
▼剖面透视图

现场调研后对队屋的现状评估结果如下: 整体木结构,大木作保存良好,仅有少数木梁柱表面腐朽,可打磨或局部替换;小木作(主要是门窗)多数已腐朽变形,基本没有保留价值,需全部替换;建筑外墙虽为填充砖墙,却因长年疏于维护,砖缝的粘土砂浆脱落得厉害,室内外多处砖墙缝隙暴露,需重新勾缝并加固。
因此改造的策略, 遵循以下的原则:1、以结构加固和外墙屋面的修复为主, 解决老屋漏雨,透风,结构安全隐患等基本问题。2、用对原有空间做减法的方式,增加多样化的使用模式,提高利用率。3、就地取材,加工回用。4、尽可能的用当地工匠熟悉的工法,将工业化的现代部品构件和施工方式控制在最小范围内。
▼改造前室内外原貌

01.
以结构加固和外墙屋面的修复为主, 解决老屋漏雨,透风,结构安全隐患等基本问题。
在着手修整前,设计师和工匠们先检查了一遍队屋木结构和墙体的现状,确定了以下几个最要紧部位的修复方法:屋面,木构架和外墙。原屋面为单层小青瓦防水, 漏点较多,需增加屋面木望板和卷材防水层,再搭瓦。原主体木构架,柱子和大部分主梁保持得还算完好,只需将局部的腐朽和发霉部位打磨;椽子因为挨着瓦片,多数朽得厉害,故决定全边更换。原建筑外墙上的窗洞很小, 有的甚至是砖头大的通风孔, 考虑到安徽夏热冬冷的气候特征,在屋顶上对应的每个柱跨内增加了一个侧高窗, 以加强室内四季的通风,尤其在春夏季,避免过度潮湿闷热影响室内使用环境。
▼修复后屋面及侧高窗

▼改造后东立面

外墙部分是徽州地区常见的砖砌加白灰粉刷,白灰脱落处能明显看到砖之间的砂浆灰缝已空。砖墙的结构弱化最容易发生在砖缝,故与结构咨询专家商量,最好能给砖墙重新勾缝,以加强砖墙的整体性。队屋的外墙面,简直就是一本微缩历史笔记。为了保留这些信息,外砖墙重新勾缝后,抹灰的部位尽量避让了“历史遗迹”区。
▼内街

▼修复后入口屋檐

02.
用对原有空间做减法的方式,增加多样化的使用模式,提高利用率。
队屋的原状,是两层满铺,楼梯解决在中部一个柱跨开间内,二层靠屋檐的末跨,净高不足1.3m,几乎无法使用。故改造中,将沿外墙的末跨打通为通高吹拔;最重要的改动,是将最端头的一跨两侧实墙打通,去掉二层楼板,形成两层通高的内街,再将楼梯置于此跨,把原来的室内空间变成公共穿行的内街。不仅增加了展厅与公众的接触面,让人不进室内就能在内街里观展,不进展厅就能用上二楼的公共空间。这些处理,让一层的村史展厅和二层的村民活动中心可独立管理,分开运营。二层的村民活动区借助吹拔与底层展厅也能互为对景。实现了一个空间,两组经营,多种模式的使用可能性。
▼屋顶鸟瞰

▼入口中庭

▼布展前展厅

▼布展后展厅

▼展厅吹拔

▼二层村民活动室

▼二层改造后木构架

▼二层吹拔区

▼活动室夜间视角

03.
就地取材,加工回用。
无论是屋面的青瓦,还是二层简单的木楼板,都是耐久的老材料,只要仔细的拆除回收,就能有效的回用。既节省了建造材料, 又让改造后的建筑延续原有的历史文脉。这个原则看似简单,执行起来费劲,可谓强拆容易细拆难。最终依靠以本地村民为主的工匠,把屋面上一簸箕一簸箕吊到二层的青瓦,挑选摘拣后分组搬到户外的空地,整齐的码好,为后续的屋面修整做准备。二层的木楼板也是,需仔细拆卸,去钉刨皮,打磨平整后在背阴通风处存好备用。由于改造后二层的面积减少,故原楼板木料去掉处理的折损量正好够用。
▼施工过程

▼修复后的石础

04.
尽可能的用当地工匠熟悉的工法,将工业化的现代部品构件和施工方式控制在最小范围内。
这有两层原因。其一,奇峰村处于石台县深山里,物流交通不算便利,工业程度自然也不高。采用工匠熟悉的传统工法,在建造阶段能解决“特殊的配件/材料”不好采购以及师傅们对工业化建造不会做的问题。 和地方工匠接触越多越发现,他们是经验型匠人,连读图都是经验型,图纸看到七七八八就按自己的理解来,不求完全一致。所以超出其经验外的做法, 即便设计师图纸画得再细致,也无法要求他们短时间内按图完成,反而会变成不伦不类的半成品。
▼施工过程

其二,这一策略在后期运营维护的阶段,能解决“让本地师傅会修”的难题。城里建筑的运营维护,可以依赖厂家的售后维修,依赖大量的专业技术工人;但村里不行,百分之九十的房屋保养,靠的是村民自己。 举个简单的例子,由于配合展陈大厅的灯具是专业射灯, 厂家发货时漏了几个配件,本是在城市里是极常见的电器元件,分分钟就能配齐装上;但在村里就得等上几天,到货后再由师傅开车下山到镇上提取。 所以队屋改造中所有的门、窗、天窗,都采用最简单传统的插销式开启方式,玻璃的安装方式也是传统的木框嵌入式, 楼梯的部位除了少量钢结构骨架,其余也都是常见的梁板拼搭连接。
▼内街顶棚夜景

这个策略说着简单,实践起来也不容易。在理想的设计效果和现实的工匠技艺和经验习惯之间,总有几轮往返沟通,各退一步的拉锯,而且设计师还得克制个人审美喜好和工业构造的习惯性做法。最终队屋呈现的,就是在以上四条改造原则下,项目业主、地方工匠和建筑师三方各自坚持但又互相包容的结果。对设计团队而言,是“无建斯建”最为彻底的一次实践。村里看似没有新房子的痕迹,但无论是入村的场地景观,还是队屋周边的小巷,以及建筑内外的空间,在此番“微创手术”后都更能融入村民的日常生活、给外来游客更亲切自然的体验。项目完成后,村民们主动送来了自家珍藏的木雕石刻等老宅构件,各种手抄本的村史文稿,还有农耕生活的各种器物,以丰富村史馆的展陈;把这个公共的房子当做自己家的一部分,闲来招呼朋友上二楼喝茶小聚,让队屋重新活起来。
▼东南角夜景全景

▼树下景观


乡村的“没有建筑师的建筑”,折射的其实是这样一种状态:当设计师用受过训练的思维,扎到农村,未必真能扎下去,因为乡村未必需要其训练有素的做法。如何能对农村朴素的“没有建筑师的建筑”有所反思或者提升,避免直接将城市经验带到农村,尤其是避免把农村当成展示设计师自我的舞台“秀”,是“无建斯建”的一个基本出发点。对建筑的处理,让人感觉不到其中刻意而为的设计,却能有舒适自然的体验,就像《道德经》所讲的“大音希声,大象无形”,可能会是对当下乡村建设更为合适的方式。
▼村口绿地和银杏树

▼平面图

▼剖面图
▼日照分析

▼通风分析

项目名称:无建斯建——奇峰村史馆
项目信息:奇峰村史馆
项目地点:安徽省 池州市,石台县,奇峰村
建成时间:2018.10.15
建筑面积:245㎡
建筑设计:SUP素朴建筑工作室/ 清华大学建筑学院
建筑设计团队:宋晔皓,孙菁芬,蒋春雨,陈晓娟,解丹,褚英男,黄致昊
照明设计咨询:清华大学建筑学院张昕工作室
结构咨询:孙晓彦,龚政
室内展陈设计:合肥壹间室内设计有限公司
项目业主方:奇峰村村委会
施工单位:黄山永筑建设工程有限公司
摄影:王睿
下期项目预告:拾云山房,浙江。
网友评论
(共 0条)查看全部