设计概况
建设单位:北京聚思传媒广告有限公司
设计单位:空间进化(北京)建筑设计有限公司
设计顾问:吴彦祖及明星团队
主持建筑师:关天颀
建筑设计:高亢,于浩
室内陈设设计:刘少华,韩越,于宏业
结构设计:陈小飞
机电设计:刘邱龙
工程总监:彭乃应
项目经理:陈海苗,何卫士
施工单位:嵊泗县第三建筑工程有限公司
建筑面积:265平方米
项目年份:2017年
设计师简介
关天颀

空间进化(北京)建筑设计有限公司创始人/设计总监
彩虹石(北京)空间设计有限公司创始合伙人/艺术总监
胡润光谷首席设计官/董事
受热爱艺术父亲的影响,小时候,关天颀便开始接触绘画与艺术。1992年, 关天颀考入内蒙古科技大学建筑学院,开始学习建筑设计。

关天颀从事建筑,景观,室内设计行业十几年,曾经在中国寰球工程公司及中国建筑装饰设计工程公司任职建筑师,而后进入集美组(北京)建筑设计有限公司任副总设计师,之后创建空间进化(北京)建筑设计有限公司,并在彩虹石(北京)空间设计有限公司任艺术总监。关天颀先生被评为百名中青年室内建筑师,并获得了中国十大商业空间设计师及中国十大别墅豪宅设计师等荣誉。在从事设计实践的同时,关天颀先生还在中央美术学院城市设计学院任客座教授。

关天颀先生主笔的许多高端项目诸如北京北湖九号商务会所、紫禁城-建福宫文化院、北京大学博雅会议中心酒店、时尚大厦室内、大董烤鸭郑州店、联东会所、SOHO尚都-泉德会所、北京湾会所、青岛FEELING会所、河南建业森林半岛商业综合体等项目均在业届获得了广泛的赞誉。他崇尚空间建构美学理念,倡导空间设计学科的无边界。

项目背景
身在纷杂烦忧的都市生活里,人们都期待着能回归大自然,体验慢生活,融入淳朴的民风民俗。因为对于慢节奏的渴望,最近慢综艺也频繁撞车,题材一致,都是体现明星的民宿生活,浙江卫视的热播综艺《漂亮的房子》却另辟蹊径,把镜头对准了那些偏僻的小村落,虽然鲜有人知,却风景独好,通过建筑民宿,带动了地区文化旅游的发展。

在这档集合了建筑空间设计和生活方式的明星真人秀节目中,吴彦祖担当节目主咖,这也是其综艺处女秀,他组建了一支“明星建筑师天团”——“筑梦之队”。前3期“筑梦之队”来到了安徽的“中国传统村落”龙潭肖结合徽州建筑文化的特征建造了一所房子,既有传统文化的留存,又有新概念的创新。

这个“铜陵市最贫困、最偏远的山村”大变样之后,周末游客过万,国庆八天游客近3万,自然风光令人流连忘返,新的居住理念和生活风貌让村民们看到新的希望。“漂亮的房子”着实带火了龙潭肖!

旅游开发、文化传承,《漂亮的房子》给小乡村带来了天翻地覆的变化。这一站,“筑梦之队”来到浙江省舟山市嵊泗县黄龙乡东咀头村——真正“面朝大海,春暖花开”的宝地,光是想象海边的画面就让人向往啊。

黄龙乡有大、小二岛,两岛东西对峙,仅相隔500米水道,位于泗礁山东南侧,岸距4.5公里。岛上岗峦绵延,平地狭小,有山13座。大黄龙岛为嵊泗县黄龙乡政府驻地。

大黄龙岛形似梧桐叶,东西长3.88公里,南北宽1.5公里,海岸曲折,湾岙环布。其海岸线总长21.14公里,最高点石屋岗顶海拔223.5米。岛上多裸岩,岩土澄黄,山势走向宛若两条黄龙蟠浮海石,岛即因此得名。

黄龙岛往昔是两省的分治之地,北港属于江苏省,南港归为浙江省。1951年后,南北二港开始合建为黄龙乡,乡政府驻地南港村,人口约1.1万,分布6个自然村,以张网作业为主。

黄龙乡的东部有一个只有十几个人居住的村庄。这里没有商店、医院、菜市场,村民们的生活寂静又遥远。这次的挑战,便是发生在这几乎被人遗忘的”东咀头村“。

黄龙岛东咀头村的村长告诉嘉宾,“我们这个村,历史很悠久,以前交通不方便,人们都跑到外面去了,现在只有九户人家,13个人。”可是村长小时村子里还有500余人,曾经的繁盛已经变成如今的孤寂。

岛上山路多、石阶多,依山而建的房子都是就地取材用花岗岩建成,目前仍然存有大量的石屋建筑群,大多数已荒废。这些民居由花岗岩建造,结构完整,坚固结实,屋面由于当时建造技术与材料的条件限制,部分坍塌。

现居民的先祖多是康熙年间,从宁波、镇海、等地迁入。百多年以来,这些石屋更多了时间的维度。

村里70%的房子空心化,改造目标选择了海边两个空置近20年的房子,上下标高近4米左右,两间房朝向面南,山墙为东西方向,面对大海,主要是抵御海上台风侵蚀。与之前的挑战相比,这一次的改造目标从一栋变成了两栋,而且房子因常年被潮湿的海风侵袭,房屋表面都布满了霉菌,整体难度增强。


改造前的房子
设计方案
时间紧,难度大
因为有两个很“结实”的老房子,设计过程是室内设计开始到室内设计结束,在仅仅三,五天的设计时间内来考虑建筑,室内,景观……各个空间设计的均衡,在建造时间仅有40几天的工期内(实效工期31天),如何达到符合拍摄要求还能够经营使用,在这个仅有几百人、各种生活生产物料依赖大陆的海岛上,选择适宜的建造方式,这是设计师考虑的重点。

在接到舟山案前,关天颀和他的设计团队就已经接触过不少类似这样的旧房改造项目,但由于有限的时间与资金,并且处于海岛台风雨季,施工人员与材料都无法保证按时到达场地,这些因素给这次改造项目增加了许多挑战。

“我第一次看到场地的时候,其实就已经开始在拍摄了,但之前因为对地形有过考察,考虑到建筑、结构、机电、室内、陈设配饰,以及景观等,在短时间内如何达到统一与平衡。最后我们整个团队花了3小时完成了一个大致方案。”



设计方案
关天颀一边拍摄,一边琢磨改造方案,在整个设计团队的努力下,用了3天时间作出了建设、室内、陈设施工图。



设计方案
“新”与“旧”的共荣
传统是物化的记忆,出于尊重既有的建筑遗存传统的考虑,关天颀在设计方案中仍然保留了许多原来老房子的墙壁和窗户,以此展现老房子60年历史的岁月积淀之美。

因为两个老房子的开间空间较小,无法满足改造后客厅、餐厅所需的公共空间需要,不适合当代的社交空间尺度,关天颀设想建造新房来解决这个问题。

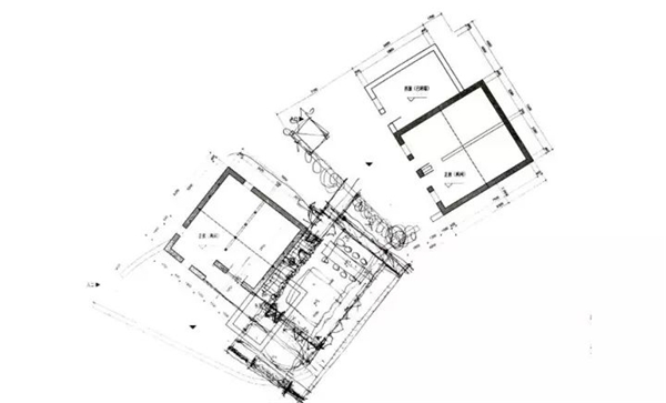
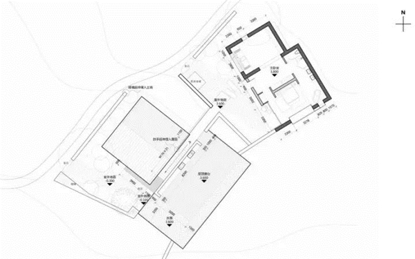
总平面图

底层平面图

二层平面图
关天颀希望新设计加入的房子,位于低处老房子的东面,场地里仅有的一块儿可以用的地方,面向大海,正好弥补原来两个老房子进身开间尺寸都太小,不适合当代的社交空间尺度的硬伤,新房子用了钢筋混凝土为主要的结构,结构与空间完整统一,没有过多装饰,用混凝土作为构造与装饰,主要也是为了抵御海洋的极端气候所带来的侵蚀。

屋面平面图
场地中“新盒子”是低调的,退后的,面对老房子近70年历史的“岁月积淀之美”,面对绝佳的自然景观,新添加的任何元素都显得多余与无力,所以新建的房子选择了“忘我”,尽量表达出尊重含蓄,并没有很多炫耀的成分,更多体现的是温情与敬意。“新”与“旧”之间相互理解尊重,和谐共处,当下的“审美”与旧日的“遗存”融合共荣。

立面图
所以整个建筑是由两个老房子设计成的卧室,加上一个没有了屋顶,后来添加玻璃顶的老厨房改造成工作室,还有面朝大海新建的钢筋混凝土“盒子”,组成了上下两个庭院,上坡主人房与下坡两间客房分开,以新建“盒子”的空间为纽带,作为共同的社交居家空间。


模型图
设计师关天颀表示:如果把高低两处的老房子看成一对“中年夫妻”,新建的房子就如他们的孩子,从海面上看向他们,位于高处的“父亲”与低处的“孩子”面向大海,面向彼岸,“父亲”鼓励“孩子”勇敢面对未知世界探索,对未来的美好生活充满无限憧憬。位于低处的“母亲”处在“父亲”“孩子”的身后,默默支持。

效果图(上:日景模式,下从左到右:雨景、夜景、黄昏、排队模式)
整体布局来看,岁月使两个老房子与原有村庄融合为整体,新建的盒子在村街当中人的“视点”里是毫不起眼的,甚至可以忽略“它”的介入。

从老村街步入进来院落,不觉中才会发现这个全新的空间,把270度海景的“高潮”留在最后空间序列中,当然从海上看过来,那是个全新的面向当下与未来的肌体。

多角度观景
“我有一个房子,面朝大海、春暖花开。”这句海子的诗道出了关天颀设计的主要方向。场地条件高低错落,海景风光如画,设计的想法一直围绕着如何把海景引入室内,一直关心着房子里的人如何多角度的“看景”,对于房子长成啥样儿,反倒是不太关心。
在新房里有一个大落地玻璃窗,可以实现270度观海景。

同时,关天颀在新房的屋顶打造了一个可全天候、全立体式的观景平台,从而更充分地把海景景观引进来。

值得一提的是,因为新房子靠近悬崖和海边,关天颀为安全起见在屋顶的观景平台上建造了一个“L”字型的无边界水池,形成限制性,不让人走出边界,从而减少了在屋顶观景不慎跌落的危险性。
同时,无边界的水池还能形成天水一线的景色,站在屋顶的观景平台上观赏海景,给人一种房子和大海连接在一起的感觉。

建筑效果图

面朝大海的立面 ©章勇

清晨 ©章勇

站在菜地看房子 ©章勇

下坡看向房子 ©杨建平

面朝大海的立面 ©杨建平

航拍夜景 ©杨建平

从公路看向房子的傍晚 ©章勇

入口处 ©杨建平
室内效果图

客厅里的早晨 ©杨建平

起居室面朝大海 ©杨建平

起居室 ©杨建平

厨房看向起居室 ©杨建平

起居室看向餐厅 ©杨建平

起居室看向风雨廊 ©章勇

风雨廊景窗看向公路 ©章勇

风雨廊看向客厅 ©章勇

风雨廊看向大海 ©章勇

风雨廊上的秋千 ©章勇

上楼梯看向主卧室 ©章勇

主卧室 ©杨建平

主卧室面朝大海的景窗 ©杨建平

主卧室晒太阳的角落 ©杨建平

主卧室休息区 ©杨建平

主卧室洗手间 ©杨建平

一层庭院看向客房 ©杨建平

二层庭院 ©杨建平

上下建筑连接处 ©章勇

屋顶平台上的日出 ©章勇
关天颀指出,参加这个节目,最主要是个建筑改造设计项目,而不是单纯室内空间改造,建筑设计考虑的问题可能要注意公众性问题,场地,环境,人文…室内设计可能很多解决业主本人的事情。盖起来房子还要能够使用,要把建筑,结构,机电,室内,陈设,景观各专业的协调完整,60天的设计与施工周期(舟山项目实际上是40天左右)是个巨大挑战,设计之初就要充分考虑技术,材料,工艺实施落地的可行性及完成度……
我们现在关注的建筑大多为宏大叙事的主题,很多毫不起眼房子与我们的生活息息相关,我们大多数人却又“视而不见”,我们身边的很多公共建筑200米视线的观感还好…但往往20米,2米…的尺度内又粗糙了很多,同时,我们又太过关注“建筑”本身的“好看”与否,忽略建筑所深处的环境,可能需要我们的房子要单纯,低调,含蓄,可能不需要那么的“英雄”…如果一个电视节目通过娱乐的方式传递给公众…使之关注到环境与建筑的关系,关心我们身处的人居环境,关注建筑美学给人们带来的空间愉悦与场所精神,“娱乐化”也没什么不好!
网友评论
(共 0条)查看全部