
“当越来越多的高楼大厦在我们身边拔地而起,当越来越多的建筑物被我们当做“强大”和“富有”的象征,有没有可能建造一种既不刻意追求象征意义,又不刻意追求视觉需求的建筑呢?除了高高耸立的、洋洋得意的建筑模式之外,难道就不能有那种俯伏于地面之上、在承受各种外力的同时又不失明快的建筑模式吗?”这段对城市建筑的现实思索出自日本建筑师隈研吾的《负建筑》一书。

在北京长城脚下设计的“竹屋”曾引起一时的轰动,用“竹元素”丰富了建筑的表现力,疏密相隔的竹墙让整座“竹屋”巧妙地融合在自然之中,诗意地透出东方文化的神奇韵味。
一、抵御洪水的“开花竹屋”

这幢具有抗洪性能的竹屋坐落在越南河内地区奠边府镇,规模可供六口之家居住,由越南H&P事务所设计。

这个可持续建筑由3.3m×6.6m模块组装而成,结构框架由竹签、纤维板和椰树叶制作,外装当地材料制作的板材,从而呈现一座灵活可变的乡土建筑。

使用者花25天便可建造并可大量生产。目前可经受1.5m高的洪水,内部可多功能使用,旨在极端气候下为人们提供温暖庇护所。

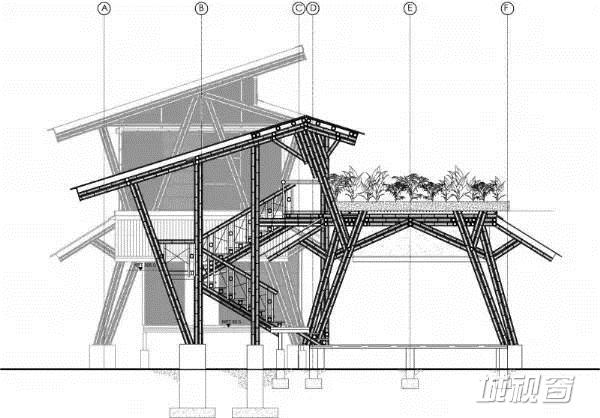
二、Atrevida度假别墅:竹子构筑的绿色安乐窝

哥斯达黎加Luzde Piedra建筑事务所设计的Atrevida度假别墅,是一个既豪华又环保的住宅。

结构使用的是瓜多竹,能够提高建筑的抗震性能,竹子不仅仅能提升建筑的耐用度,同时还能把建筑的外形装饰得很有特色。

这个材料还有一个吸引人之处,因为它的生长周期短,从而减少二氧化碳的排放。



三、法国卢桑"竹子楼"建筑设计

Monica Donati设计的巴黎总部第一个三相的办公综合楼,位于城市、花园和乡镇间有限的空间。

建筑利用间隙空间的概念,半透明或透明交替变换,黑色的窗棂通过利用竹子表皮折射更多的光线。



四、巴厘岛绿色学校

这是John Hardy和他的妻子Cynthia计划兴建一座“绿色学校”。是由PT bamboo pure负责整个竹子建筑的技术设计。

当地丰富的亚洲木材具有多种利用潜能,它们可以作为结构、装饰材料,用于制作地板、座椅、桌子和其它器具。

建筑师通过组装各部分构件的方式来建造整个建筑物,将当地的传统建筑形式与当代设计有机融合。

由多根竹子交织组成的通高圆柱支撑了整个建筑,柱子与屋顶的交界处是一个木制圆环,形成了屋顶天窗。

螺旋形屋顶从主要的垂直支柱开始扩展,让自然光线能到达建筑的每个角落,巨大的屋檐为开放的室内空间提供遮蔽。

建筑共有三个主要楼梯和三层空间,包括多功能区域和不同程度的私密区。

John Hardy和Cynthia的女儿美女设计师Elora Hardy可能是因为父母的影响,2010年她辞职不干了回老家(印度尼西巴厘岛Ayung河谷生态村Green Village)建竹房子去了。她召集帮爸爸建绿色学校的艺术家、建筑师、工程师和手工艺人还有她自己一起创办了一家叫Ibuku的竹子建设公司,心想要用竹子震撼整个巴黎岛乃至热带的建筑行业。

Elora Hardy至今还觉得竹子的性能被设计师低估了,她说:“只要有创意和努力,你真的可以用竹子建出独特的、美丽的、舒适的、安全的,甚至是奢华的房子。”

到目前为止Elora Hardy和它团队完成了大大小小40多座独特的竹子结构建筑,这些竹屋与当地景观和谐的融为一体。都是就地取材,通过她的团队用传统的方法建造二成。

其中最得意名的作品是Sharma Springs。位于半山腰的竹屋一共有6层约750平方米,能俯瞰Ayung河谷风景。该建筑几乎完全使用竹木建造,建筑入口时通过一个充满奇幻的隧道式桥梁直接引导人们进入四楼的露天客厅、饭厅以及厨房。

竹子搭建的隧道,很有奇幻的感觉

隧道直接带人们进到露天客厅、饭厅和厨房

五、竹子伞下的KONTUM INDOCHINE咖啡厅

Vo Trong Nghia Architects设计的五排竹子构建成的大伞一样的柱子支撑着这座水边咖啡厅的屋顶。设计的灵感来自越南传统的捕鱼用的竹筐,屋顶采用茅草和增强纤维材料编制而成,光线可以很容易地透过,洒入餐厅内,形成斑驳的光影效果。

用餐者的餐桌位于“竹伞”下,犹如置身水边竹林之中。Kontum Indochine Cafe没有任何墙的包围,可以对周围的水景与远处的山色一览无余。

餐厅内没有设置空调,设计师解释道,通过周围的水池和树荫,及时在最热的季节这里也感觉凉爽舒适。

网友评论
(共 0条)查看全部