
在700年前, 一座尼泊尔佛寺和它50米高的巨大白色宝塔建于古代的北京。从过去到现在,佛寺和白塔所带来的宗教仪式与活动使建筑本身和谐的融入了周围的胡同体系与四合院环境,并且最终成为了现代北京历史文化的一部分。

美术馆外观 ©夏至
项目位于北京市西城区白塔寺文化保护区内,临近鲁迅博物馆。在这个地区,大多数的水泥住宅建于1980年代,当时的当地人想要撕开四合院的包围从而拥有更大的生活空间并享受现代生活。
水泥块体住宅因此在胡同体系中成为了一个比四合院更宽大的普遍住宅类型。原建筑功能以居住为主,我们将其改造为包括艺术家起居、工作室、公共展厅等场所的艺术空间。

美术馆鸟瞰图,设有屋顶花园

美术馆外立面,采用白色的外墙面 ©夏至

美术馆外立面细节,采用竖向窄窗,部分墙体被弧面分割 ©夏至

美术馆入口 ©夏至
在保留原建筑主要结构的基础上,将其划分为南侧艺术家生活区和北侧公共展区两个部分,并根据场地肌理和环境,植入两个室外院落,承载自然光影。在室内空间中,留出部分边角缝隙,使光线渗入,并在地面做绿化与之呼应,成为竖向拉伸的自然角落。

公共与私密空间分析图


北侧的双层通高的公共展厅 ©夏至


室内展厅局部,留出部分边角缝隙作为采光井,使光线渗入 ©夏至
通过传统庭院设计,天空与周边的树木成为了庭院的顶棚,让建筑本身融入了周边环境。庭院与天窗明确被弧面设计分割,从而给与内部空间一种持续的流通感。这同时也反映了在白塔寺胡同街区行走的感受:白塔本身会被胡同的方向和形态所遮挡但同时又具有持续性视觉效果。

庭院空间分析图,自然置入

通风采光措施分析图,缝隙置入


角落处的庭院空间,采用弧面设计,重新引入传统的庭院 ©夏至

角落处的庭院空间,弧形天窗将光线引入室内 ©夏至

从庭院的弧形天窗向上看,建筑与周围环境中的树木相联系 ©夏至
空间分布
在南侧艺术家起居部分,以置入功能盒子的方式,形成一层的书房、餐厨沙龙空间和二层的卧室,满足居住的需求。同时二层延伸至北侧一间艺术家工作室。北侧其余部分,则是开放的公共展厅,楼板打通,空间高度起落,并连接两个室外庭院。
室内主要墙体向上延伸至屋顶,成为屋顶花园的田埂。屋面边界结合边角缝隙的秩序,以透明玻璃的形式围合出整个屋顶公共区域。

种植屋面与屋面视线分析图

屋顶(云朵)棚架分析图,用于建筑降温与植物用水


屋顶花园,以透明玻璃的形式围合出整个屋顶公共区域 ©夏至


屋顶花园,室内主要墙体向上延伸至屋顶,成为屋顶花园的田埂 ©夏至
白塔寺承载着深厚的历史文化,项目中的弧形语言和白色纹理,向胡同中延伸了白塔的印象。屋顶花园的植物棚架,则反映了胡同里的生活气氛。在历史文化和环境现状的影响下,这里将成为一个胡同展场,实现片区的有机更新。
白塔本身为这个地区的胡同四合院生活带来了活跃的吸引力,这同时也是我们改造设计这座双层高水泥住宅的重要理念。整个建筑使历史与未来因素的结合,给胡同社区生活带来了新的可能性。

美术馆夜景 ©夏至

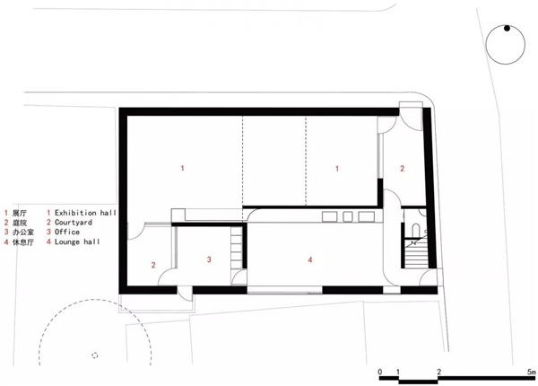
一层平面图

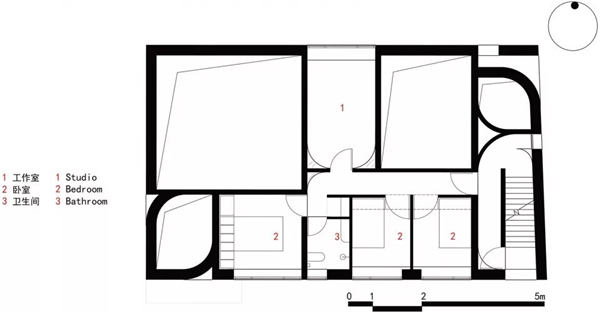
二层平面图

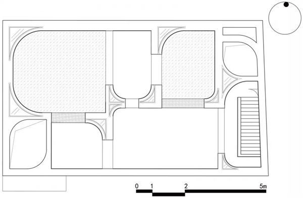
屋顶平面图

1-1剖面图

2-2剖面图
文章来源于谷德设计网,如有侵权,联系删除。
网友评论
(共 0条)查看全部