
本项目位于一个新兴的住宅区内,距离越南胡志明市的市中心仅有15分钟的车程,是为一个三代之家设计的私人住宅。基地周边的新建住宅如雨后春笋般地出现,形成了一个高密度的社区,从而使得所有住宅都共享外墙。本住宅项目位于一个宽7米、长20米的狭窄基地内。在这个典型的亚洲高密度住宅开发区中,建筑师决定设计一个能够适应热带气候的、与绿色植物相互交织在一起的舒适住宅。

住宅外观
客户所提出的首要要求是设计“一个大型的绿色花园”,从而为孩子们提供玩耍空间、为成年人提供可以与家人朋友一起烧烤的休闲空间。
此外,住户还希望一层空间中能够设置一个大型的游泳池、一系列运动空间、一间祖母专用的卧室、一间起居室、一个带厨房的餐厅空间、以及一个足够大的停车场等。因此,建筑师提出,可以将“大型绿色花园”的概念转变为一系列彼此联系的小花园。

住宅轴测分析图

住宅外观局部,各层体量略微扭转,一系列彼此联系的小花园组成一个连续的“大型绿色花园”

住宅外观局部,立面上的绿植调节室内气候
连续的花园空间
具体来讲,随着住宅的高度逐渐升高,扭转的体量呈现出逐渐退台的造型。在顶层空间,建筑师设置了一个2米长的悬臂空间以连接主要道路。住宅的阶梯式花园与露台交织在一起,以连续的形式一直延伸到顶层空间。
不同种类的树木提供了一系列遮阳空间,不仅能够遮挡强烈的阳光并在空间内投射出迷人的光影效果,还能降低住宅空间的温度。此外,所有的植物花盆都可以作为一道屏障,作为住宅空间与外部主要道路之间的分隔。


从屋顶平台看住宅
另一方面,一系列室外露台根据功能,以不同的规模尺度分散布置在各个楼层空间中。在某些位置,露台被设计成一个私人花园,住户可以直接从卧室进入。而在其他的位置上,露台则成为了公共花园,每个人都可以这里聚会交谈。值得一提的是,所有的这些花园相互独立,又彼此联系,形成了一个“连续的花园”,住户和孩子们可以通过室外的钢制楼梯穿梭其中。


室外露台俯视图,各个小花园相互独立又彼此联系

室外露台,室外的钢制楼梯将花园联系起来
室内空间中,首层和二层通过一个大型的中央通高虚空间联系起来。这个虚空间将所有的主要功能空间如起居室、带厨房的餐厅、图书室和儿童卧室等联系了起来,使其成为了一个整体,为所有住户提供了可以彼此交流沟通的空间。同时,通过住宅内不同规模尺度和比例的大开口,住户还可以与外部环境中的绿色相联系。因此,建筑师希望这座私人住宅能够成为人与人、人与自然联系的桥梁。

首层空间中的起居兼餐厅空间,中央的通高虚空间将一二两层联系起来

起居兼餐厅空间旁的游泳池
环境策略
建筑师通过略微扭转各层的建筑体量,创造出一系列间隙空间,从而将阳光和冷风引入室内空间。此外,这一设计策略也在这个狭长的空间中创造出一系列开放空间。鉴于住宅立面上的绿化减少了进入室内的直射阳光,住户未来的空调用电量也将减少。

从二层的儿童卧室看,一系列间隙空间将阳光引入室内空间
本项目的预算并不充裕,因此建筑师需要尽可能地降低住宅的装修成本。因此,建筑师将红砖作为建筑饰面,这是越南当地常用的一种建筑施工手段,不仅呼应了地域传统,同时还从整体上减少了建筑的施工造价。另外,由于劳动力的成本很小,建筑师得以机会监督控制场地上的建材和施工质量。而且,红砖也是一种当地材料,这一举措大大减少了运输过程中的碳排放量。

从二层的图书室看,室内空间采用红砖饰面

从二层的图书室看
将人与人、人与自然联系起来
在过去的几年中,建筑事务所VTN architects一直致力于设计“树木之家(House for trees)”的系列项目,本住宅便是该系列的最新设计之一。在这个系列的项目中,建筑师不仅要在建筑内种植树木,还要针对树木创造一种新型的住宅,从而使住户的生活与自然更加紧密地交织在一起。

二层图书室室内


三层的主卧

楼梯空间(左),天窗(右)

住宅夜景
项目图纸

总平面图

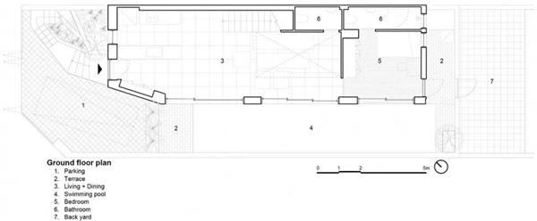
首层平面图

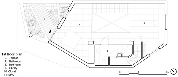
二层平面图

三层平面图

屋顶平面图

立面图

剖面图
文章来源于gooood谷德设计网 ,如有侵权,联系删除。
网友评论
(共 0条)查看全部