
在波兰的什切青市中心,由巴塞罗那的barozzi veiga 工作室为该市设计的交响乐团音乐厅盛大开幕了。建筑通过垂直比的例和陡峭的屋顶,以及以及单一的体量所产生的工业感,对当地传统建筑进行了呼应。为了让建筑成为该地区的地标,并作为城市转变的一个象征,包裹整个建筑的半透明玻璃外表皮与周围的环境形成了一个鲜明的对比。

街景
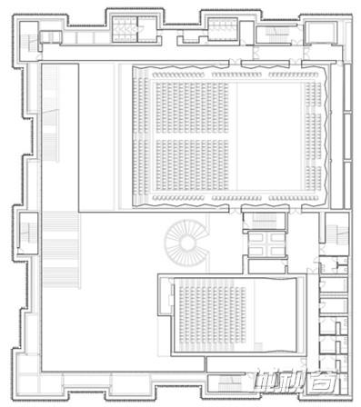
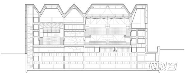
该建筑包含2个音乐厅,它们被设想为两个悬浮的盒子,并在它们之间形成一个带有天窗的开放式大堂。为了获得最佳的隔音和灯光效果,容纳951个座位的交响大厅和容纳195个座位的内厅都由混凝土建成。中央楼梯以体验式长廊的形式连接所有的功能空间,最后将人们引入一个大型的多功能厅。建筑的双层表皮统一了外立面,同时拥有恒定的光感,其中空层能自然通风并过滤掉热量,起到控制室内的温度的作用。

(左)大堂空间、(右)从舞台看交响大厅

交响大厅的舞台

开幕表演

细节设计-后座引入天光

鸟瞰图

建造

建造过程

图纸

项目场址

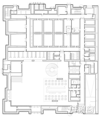
平面图/地面层

平面图/二层平面图

平面图/三层平面图

平面图/四层平面图

剖面图

剖面图

剖面图

立面图

立面图
项目信息
地点:小波兰48,什切青。波兰
创办人:barozzi / veiga, fabrizio barozzi , alberto veiga
项目负责人:pieter janssens, agnieszka samsel
项目团队:marta grządziel, isak mayor, petra jossen, cristina lucena, cristina porta, ruben sousa
本土建筑人:a4 sp. z o.o.工作室,jacek lenart
结构工程师:boma s.l., fort polska sp. z o.o.
安装:gla engineering sp. z o.o.; elseco sp. z o.o.; anoche iluminación arquitectónica
声学设计: arau acustica
立面:ferrés arquitectos y consultores
承包商:warbud s.a.
基地面积:3800㎡
使用面积:13.000 m2
体积:98.200 m3
音乐厅观众席位:交响乐厅951,内厅192
竞赛:2007
项目:2009
建造:2014
预算:118.918.000 兹罗提(大约30.000.000 欧元)
摄影:Simon menges, Radek kurzaj (construction site)
网友评论
(共 0条)查看全部