这座占地15万平米,位于土耳其安塔利亚凯梅尔区Kiriş镇的凯梅尔MAXX皇家酒店。酒店立于城市地区和自然区域两者之间,是进入自然区域的门户。
酒店建立在陡峭的山坡上,被茂密的森林、两条海湾和一个非常长的海滩所包围。它由东到西可根据树木,独特的植物,山坡,1987年在此区域建造的Kiriş世界酒店的残留建筑以及海湾和小海滩等等自然或人工要素分成具有不同特征的景观特色分区。



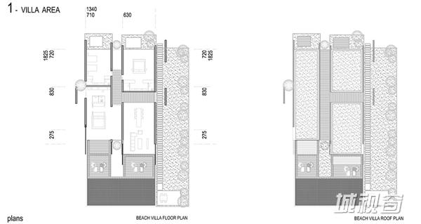
别墅区(拉古纳别墅——海景别墅)
联排别墅位于相对空平坦的海滩区,每家每户的体量在前后都稍有错开,片墙成为限定空间的主要元素,定义出公开,半私人和私人空间。水域在建筑前或者后展开,与片墙发生接触,成为一个渗透进入建筑的元素,将这片区域定义出永恒宁静的氛围。
别墅区的材料选择上,建筑师希望兼顾自然融合与高强度这两种特性。建筑师将横截面为14厘米的天然石材贴在混凝土结构外,塑造出砖石墙外观建筑,与当地自然环境和谐。
山坡(家庭套房)
设计理念建立在“条件限制”之上,如陡坡,茂密的松树林,场地微气候以及之前建筑物的痕迹。虽然这样的限制最初被看做是不利条件,但实际上赋予此项目独特的个性。因此,建筑师基于这些现存的条件而做出适应的决断,而不是抵触和克服这些地理和条件上的“限制”。
该区域的工作焦点为“修正”。也就是说,轻微的改变场地,在斜坡上作出梯田式平台安放建筑。利用当地的天然石材和木材,实现建筑与自然环境的和谐。
立体的木质构件不光适应当地气候,也与当地自然风光相得益彰。设计并不力求创造吸引目光的张扬景观,而是力求与自然和谐,尊重场地。
最终,建筑隐藏在生长着茂密植物的山体中,与场地成为一体。
此区域包括前台和入口处,距离海湾最远。从海滩看不到这里。地势平坦,是联系酒店各处的中心。
主楼有餐厅,水疗中心,商店和酒店大堂。建筑基本构造元素是既可做遮阳板又可作为栏杆的木质构件。这些围绕主楼的木质构件,像一层薄网,与周围浓密植被发生着全新的关联。
中湾及其周边(餐馆-酒吧)
餐厅与酒吧位于主楼,山体别墅,还有联排别墅三者的中间地带,一面朝海,周围植被茂密。建筑体量被处理得相当通透,掩映在绿色之间,享受着泳池,树林,海景。
























网友评论
(共 0条)查看全部