当前位置:首页 > 艺术教育 > 原创设计 > 正文

交叠起伏的木表皮,波哥大商贸大楼

发布时间: 2015-01-07 14:01:03 编辑:Winnie 来源: 专筑网 浏览次数:
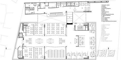
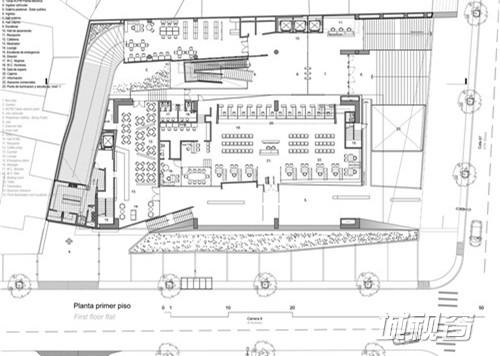
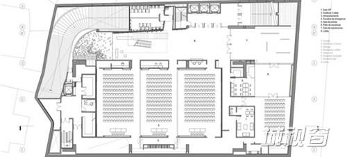
本项目提出了一个问题,即一个在城市不知名角落中的公共建筑如何为人们带来都市生活。因此我们构想出一个场所,使首层地面倾斜创造人工地形,并且通过传统平台空间和所创造的城市露台为那些上下的公共入口增添活力。


 

  设计将建筑的正常运营空间和附属空间区分开,包括:一个循环使用的辅助体量,它的作用是连接各层并为建筑提供辅助设备空间;另一个活泼的棱柱体体量提供活动空间。这个空间设计的构想在未来可以承担无限的变化。在它们之间有一个与附属空间分开,可以称为“中庭”的缝隙空间。这个空间加强了两个体量的关系,也是自然采光和通风的入口。

 

  建筑的主体部分被起伏的胶合板包裹起来,这一设计是受到动态艺术的启发,带来了视觉扭转的效果。像波哥大商会最近建造的建筑一样,这个建筑带有一个公共的半框架结构。

































关键字:交叠起伏,城视窗,木表皮,波哥大商贸,大楼
相关新闻 more>>

网友评论

(共 0条)查看全部
验  证  码: 只允许输入140个字
(网友评论仅供其表达个人看法,并不表明本站同意其观点或证实其描述。)
Art
友情链接
>>