华丽变身 BEBO住宅改造
发布时间: 2015-01-29 17:55:48
编辑:Winnie
来源: 建筑学院
浏览次数:
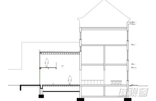
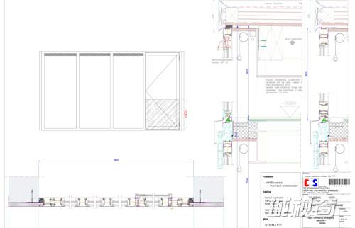
我们在安普卫特De Coninckplein附近发现了一个大型、封闭私人住宅。这个特殊的房子和我们看到的周边其他建筑一样,散发着不舒适气息。在原来的状态下,这所历经50年的房子达不到舒适生活的标准。因为这个原因,洗衣房、厨房、厕所、门廊以及其他区域向着花园延伸,就像是衰老的身体里的恶性细胞。将这些和其他难看的结构从建筑中剥离,使建筑回归到一个纯净的,几乎赤裸的状态。业主对所有楼层进行了全部彻底的改造,优化可用空间,添加现代化功能。建筑背后一个俏皮的橘园朝向院子开放,形成一个内敛、优雅的盒子空间。
改造后

改造前


关键字:华丽变身,BEBO住宅,改造,城视窗
网友评论
(共 0条)查看全部