

在这个房子的设计中,我选择设计可以依据建造过程协调改变的空间形式。最初的形式来源于我与妻子四手合作的一张草图。
为了更多保留我们渴望的生活方式,我们希望把项目设计成一个房间不朝外而是朝向院子的家。我们可以在这里拥有我们的隐私与更亲密的空间。因此,我们选择了一个有西、北立面的转角地段,而留下了拥有更好通风效果,位于内部面向建筑内所有房间的东侧和南侧。这样面向道路的一侧变得更不通透,开放而且透明的一面都面向内部庭院。

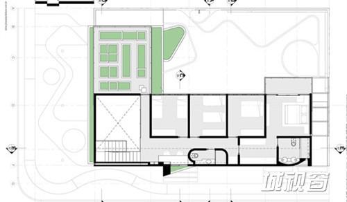
院子是整个项目的重点。甚至在建造之前,按照重要性排序,这些没有建成的空间才是整个场所中的主要元素。这个想法是为了尽可能少地占用首层地面空间。这样在一个375㎡的范围,只有75㎡设计用作起居室、厨房、厕所和洗衣房。其余空间完全开放并作为室内花园和露台中。

一条用砖砌成的曲折的墙作为一个过渡区,将公共空间与私密空间分隔开。它既可以在实现通风,又可以保护内部庭院的开放式休闲空间的隐私,被亲切的称作“bebódromo”,一种自Wandenkolk 时期流传下来的叫法。除此之外,它也可以提示并引导客人们来到公共通道。

在院子里面,花园呈现最自然的状态有机地存在。这并不是严格的建筑设计,而是若干相互补充的植物聚落。我是一个园丁,园艺是我主要的放松方式。厨房楼上不设置房间,我在屋顶楼板上开辟了一个菜园,种植蔬菜和草药。

热舒适性是这个项目另一个值得注意的关键点。对于一个处于热带地区的建筑,伯南布哥建筑学校漂亮的旧现代建筑和Armando de Holanda关于“东北地区建筑地标”的相关内容,为我提供了地面结构的各种解决方案。

房子的房间拥有充足的自然光照,流通的空气,有屋檐遮挡以防太阳光的直射,屋檐下形成适宜露台的空间,光影也形成了外界环境与内部之间的过渡。在公共区域,一个双层的通风墙保护了房间,它有两层高,提供了必要的热舒适。然而,这个面向北侧的空间有一个木制的格架阻止了过多的太阳光照射进来,特别是在夏季月份当太阳斜射到这个方向时。这些百叶窗可以使房间拥有开阔的视野,必要时能控制太阳光的摄入。楼上,通风和浴室实现了保护房间远离高温的功能。因此,增加隔热层,房间永远都可以通风良好。我们现在依然不需要安装空调。

上部的蓄水池和分离冷凝器区域被包裹在了西侧立面顶部的硕大黄色体块里。

这个房子有一处设计削弱了多样性,它唯一的目的是创造一个共存的空间,用于接待朋友,以及总在聚会中必不可少的音乐。在这个空间里,儿童们可以分享他们的玩具并度休闲时光,可以在阳光明媚的日子里玩耍戏水。

在角落里,可以读一本好书,或者仅仅是停下来欣赏一下花园。

这个房子与人们意识里固有的住宅建筑形象无关。这个房子就像一套剪裁精致的西服,它只适合那个为它设计的人。


















项目信息
建筑设计:Jirau建筑事务所
地点:巴西 伯南布哥 卡奴阿奴城
项目设计师:Pablo Patriota
合作者:Mariana Caraciolo e Bernardo Lopes
项目面积:314.6㎡
项目时间:2012年
摄影: Antônio Preggo
合作方:Reginaldo Luiz e Silvia Pessôa
实习生:Marcela Vasconcelos, Bruna Matos, Felipe Castanha
室内设计: jirau arquitetura
景观设计: jirau arquitetura
灯光照明设计: jirau arquitetura
结构工程师:Frederico Barbosa e Sebastião Neto
电气工程师:André Castanha
占地总面积:375平方米
网友评论
(共 0条)查看全部