

费兰德住宅坐落在奇尔特恩丘陵一块宽阔的基地上,位于斯哥麦特村与汉布莱登村之间。奇尔特恩群山是横贯英格兰东部和南部的白垩山系的一部分,森林覆盖率超过20%, 这使它成为了整个国家森林最为茂密的地区之一。自1965年起,它被评为优秀自然风景区。

基地此前建有一栋两层住宅以及一些附属建筑,包括两个车库、一栋避暑夏舍、宽大的马厩、一个健身房、一个温室以及一个室外游泳池。这些构筑物与硬质景观以一种无组织的形式并置在一起,相互之间以及与环境之间都缺少关联。

项目的设计提案展示了一种可能,即移除所有建于基地上的相互冲突的部分,归还该场域原生的景观特性。此外,方案移除了从原始森林内部或周边移栽来的松柏类植物和郊区植物,嵌入其间的几块小场地重新恢复了自然的绿篱,而大片的区域则划定为新的本土森林植被区,引入了森林管理机制。

项目的土方量非常大,就像是一座处在斜坡尖端的大坝。单层的住宅镶嵌在场地中,面向西南方的山谷。一条宽敞的门廊沿着建筑的整个立面延伸,成为了私密室内空间与辽阔室外景观之间的过渡。

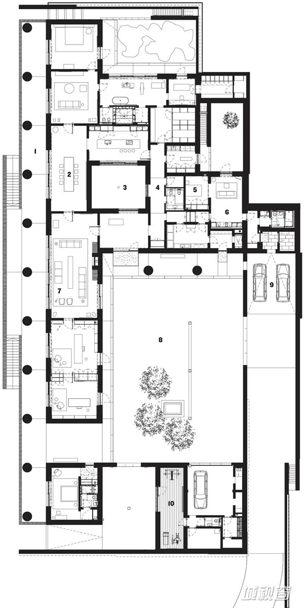
主起居空间沿门廊开敞,住宅内部附属的房间则围绕几个较小的内庭院开敞。所有庭院都具有不同的特点,并与自然环境紧密连接,这和在主起居空间遥望山谷远景的体验形成了对比。建筑可通过场地东北一条嵌入景观的坡道进入。四个下沉庭院中,最大的一个庭院位于工作区域,就如同在汉布莱登山谷中的农家宅院的布局一样。通过这一入口院落可以进入房屋中的不同区域;它也通往门廊,穿过门廊拾阶而下,便可步入建筑之下的庄园土地。此外,这个院子还把房屋中的访客区域与主体区域分隔开来。

混凝土屋顶被来自基地的土层覆盖,并且种植了本地草种;墙体则由砖砌筑,从室内外都可以看到材料本身。砖块和石灰砂浆的白色令人联想起住宅之下的白垩山崖。一方面,这栋住宅看起来像是景观中的一处天然悬崖;另一方面,它又通过正立面粗犷的砖柱强调着自身的人造属性。





平面图

剖面图

剖面图

剖面图

剖面图
网友评论
(共 0条)查看全部