
为了配合现有的建筑体块,TLA设计团队决定整合并重新诠释场地中原有建筑元素的美学特征。因此,边条的处理经过了深思熟虑并在项目中为楼层赋予了局部维度。虽然它融合在了环境之中,但是赋予它高辨识度的个性很重要。

木质外表皮的阳台从建筑中伸出
该项目中广泛应用了木材。首先,作为外立面的覆盖材料,其次,应用于小的子空间中。如同小屋一样,凉廊或者阳台创造出亲密的户外空间以及起居空间的美妙延伸。木质百叶营造出温暖的感觉,但同时也作为一种过滤器,保证了隐私和光照。最后,标志性转角的表现形式加强了项目的几何结构并且清晰界定了两个独立的体块。在上层设置了15间公寓,表面覆盖了木质材料,并不时地插入一些小的适当的体块。不同于基础的材质,外伸的筐篮形式加强了两个形体之间的分裂感。一层包含了两个公共空间,包括一个税务中心和一个派出所。该项目最大的难题是解决成本、舒适、美学、社会和环境问题。这种有趣的立面形式作为一种遮光措施体现了功能性的角色,富有韵律,并且透过的光线满足了光照需求。


黄昏中的集体住宅

入口门廊的橄榄树

木质叶片在室内形成了有趣的光影

西立面

转角

木质凉廊特写


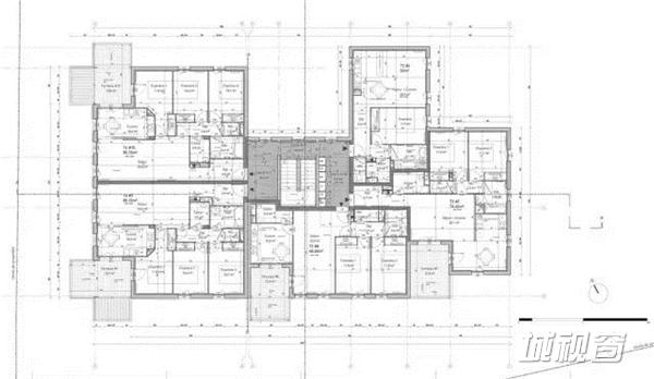
二层平面图

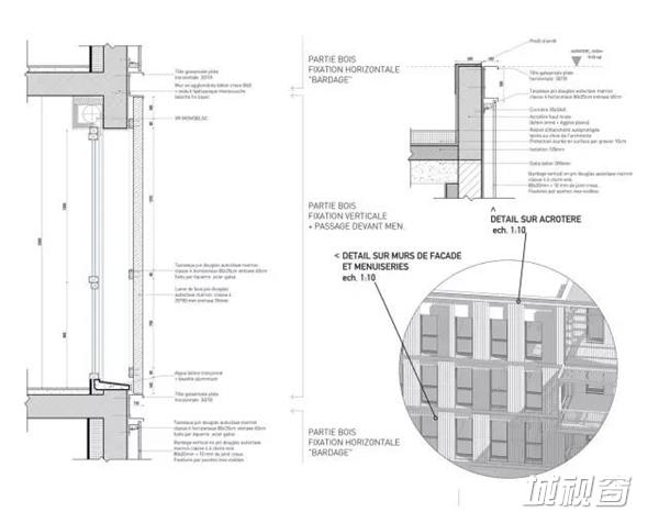
扶手和凉廊节点图
网友评论
(共 0条)查看全部