
以跨文化的组队方式激发出新的人与自然的空间关系。 由于在加州常见运用自然材料工法的建筑,希望能在亚洲日本尝试此想法,因此研究过土砖、稻草砖、夯土墙的工法在日本的可行性,然而经过反复研究发现,目前美国常见的工法,在日本跨国技术移转的门槛却高出许多。



项目团队转而找寻日本当地常见的材料工法进行创新,发现日本小断面木构造十分盛行,故兴起与美国大断面木构造的想法作结合,因而产生了以小断面木材结合成较大断面的复合柱工法。藉由与日本结构顾问和当地木匠讨论进而确定工法细节。此工法能够有效地降低造价,减低施工难度,使项目从设计到施工在六个月内的期限完成。

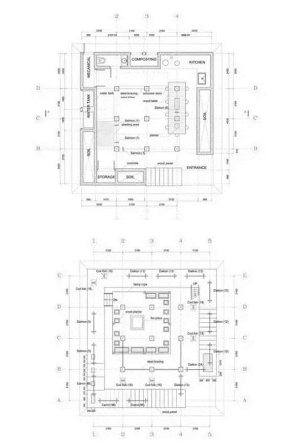
位于地面层的填土墙,除了创造出有趣的微地形与增加种植区域外,亦帮助阻挡西北向的冬季盛行风,社区厨房墙面与堆肥厕所亦整合在厚墙中,使地面层空间使用上更灵活开放,地面厚墙之间设有农作物回收的堆肥空间,提供一个长时间的蓄热与发热来源。项目利用了透明与半透明的塑料浪板引入光线照射植物,加热室内空间,在寒冷的北国冬季延长植物可生长时间;在温暖的夏季,立面的拉门与屋顶的天窗可适度地打开以产生空气对流。使位于空中的茶室享受冬暖夏凉的气候状态。结合日本传统的农作物风干保存法,木构架在内空间之外,更提供食物依据季节风干展示的舞台。在这可吊挂植物与食物的木构架结构,建筑师试图创造日本落叶松木林内的垂直空间经验。

在这犹如鸟巢般的木构架中,受到日本美学与生活意识影响,建筑师设计了一个附有火炉的茶室空间,提供社区居民聚集聊天,并使人在视觉与触觉方面能感受到被食物环绕的状态。从远方望向建筑,会看到植物与食物构成了建筑立面,犹如一座食物森林矗立在这广阔的北海道平原上。


立面的开口可依周遭的自然环境气候与室内环境需求作弹性地调节使用,开口部关闭时可产生室内与户外不同的物理环境状态,开启时可营造北国辽阔的视觉框景与体感的舒适气流。漏斗形屋顶可收集雨水与雪水到地面层的水箱,简单却有效率的集水系统可用来灌溉种植的食物。漏斗的形式象征着将自然的元素〈水、光、空气等〉导入内部的状态。


项目的空间机能是由当地食物的生命週期与人的互动所决定的,从生长、采摘、储藏、烹饪用餐到堆肥,重新变成土壤回到生长的循环,每个阶段都有设计其相应的空间。所有社区居民都鼓励参与任一食物生命周期循环阶段,使建筑一年四季成为团体聚集或学习的平台。社区居民的参与延长并完整了食物的生命周期,这其实是一个人与自然互利共生的和谐关系。故我们可以看到人与其所食在建筑中随着时间发生各种活动,我们也可以说它是为食物与人设计的家。









空间艺术设计与规划专业视频媒体平台,致力于科学人居从空间规划→艺术设计→精准选材→可持续发展等一系列产业链环节的无缝对接与解决方案的整合传播。在微信公众账号中搜索“城视窗”或“citiais”,或用手机扫描左方二维码。我们将为您推荐行业最新、最热、最好玩儿的资讯!
网友评论
(共 0条)查看全部