
广西玉林大容山-露营圣地
在汽车文化盛行的北美,房车度假文化早已流行多年,其中拖挂式房车已演变成一个可移动的精品公寓。拖挂式房车是汽车与居住单元分开的一种形式,也就是说,普通轿车在车尾装个勾,就可以把这个可移动的公寓拖到想要到达的地方。
在美国,有这么一个生产可移动房车小公寓的公司Traveler,设计出三款可移动公寓产品,在20平米的长方形空间里,将床、浴室、厨房、客厅全部装进去!目前该产品已获批,将实现标准化生产。
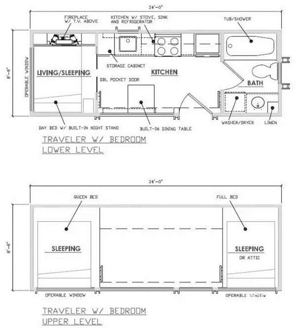
24平米的三居室
Traveler去年曾设计了第一代产品,公寓是长条形的木质结构,四周为了采光,大量才用玻璃小窗,公寓最中间为大落地窗及进门入口,进门后便是一整排整齐的橱柜,简洁的木质桌椅规划出餐厅弄能,宽敞明亮的格局,很有氛围。


公寓两端为LOFT结构,其中一变边将下层作为公用浴室。另外一边上下两层均为床位。床可作为沙发。


另外床头配有电视柜和电视机,预留了充足的收纳空间,短期度假书本及随身物品的收纳基本能满足。

由于大量使用松木、钢材、防水等新材料,整个移动公寓的成本仍相当高,目前市场价为65400美元,约合42万人民币。


32平米住8个人?
为了提供性价比更高的产品,Traveler 想出增加空间的办法,做出了一个加长版的移动公寓,面积约为32平米。房间格局基本与上一个型号一致,只公共区域增加了一个可折叠沙发,Traveler 宣称最多可以容纳8个人,尽管只有一个卫生间。







15平的一居室卖25万?
在经过一年的迭代后,Traveler公司推出一款低价的移动公寓产品Vista。这款移动公寓设计一居室,面积不到15平米,但厨房、卫生间、餐厅一应俱全。与前两款相比,Vista更大胆得使用了玻璃窗,景观效果更佳。






这一款移动公寓最终定价在39900美元,约合25万人民币。


移动小木屋公寓看起来虽好,尽管国内短时间内大规模流行的可能性较小,只能成为少数人娱乐的产品。但在工业化成熟的中国,一旦移动小公寓可落地使用,将开启中国公寓的另一个天地。

空间艺术设计与规划专业视频媒体平台,致力于科学人居从空间规划→艺术设计→精准选材→可持续发展等一系列产业链环节的无缝对接与解决方案的整合传播。在微信公众账号中搜索“城视窗”或“citiais”,或用手机扫描左方二维码。我们将为您推荐行业最新、最热、最好玩儿的资讯!
网友评论
(共 0条)查看全部