
Khanh Nguyen设计师运用相近的色彩、中性色调、自然色彩使空间视觉感变得更大。

单调的色彩可以用家具加以美化,黄色让整个空间更加美妙。

选择小尺寸的家具,尽管家不大但感觉整整有条,表面反光的材料也可以增加空间感。

电视背景墙更是利用白色和木打造一种轻快的感觉,再一次扩大了视觉空间。

床那么小可能是单身公寓,但是考虑到物品床下有抽屉甚至床尾还有收纳空间,衣柜占据大概一面墙给了主人公大量的存储空间。

Ksenya Surikova 专为男性而设计的小公寓,暗暗的色调并没有让空间很乏味,玻璃墙面拉伸了空间。

虽然小空间通常建议保持相同的地板以保持空间的连续性,但厨房的直线条拉长了空间。

垂落下来的窗帘过滤了光线,使得空间更加丰富。

有时大面积的窗帘也可以拓展空间,就像设计师完成的这个卧室,也许这个空间扩大空间的神器就是“镜面。

Alex Koretsky and Viktoria Pashinskaya改造这个丰富多彩的公寓比实际上大了许多,而现代感表面能“反光”的墙面和茶几又是扩大空间的妙招。

也许整个空间属“照明”最有特色吧!

木头板成为了架子和板凳

设计师再一次利用“照明”来博取眼球,这个美丽早餐吧台虽然不大但却能容下6个人,早餐吧台也是越来越多年轻人的选择。


浴室着实令人惊讶,之前提到过“闪亮”的材料会使空间更大,镜子和发光的墙面增加空间感还是很显著的。

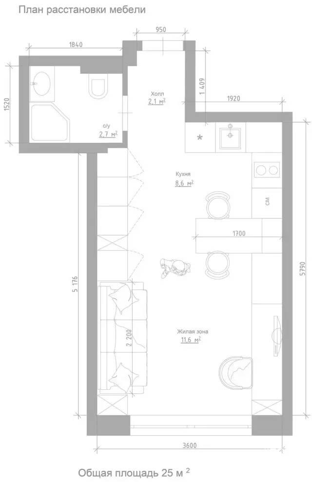
DesignRush说这个是专为女性设计的,但阿联认为喜欢的人都合适。25㎡的小公寓成了难以置信现代功能空间。

记得“一幅画”是可以拓展空间的,这个主人需要一间工作室,在狭小的空间不应该放弃,设计师选择把家庭工作室完全融入厨房旁边。



之所以选择不同地板,是想要厨房和客厅不同功能显得更为明显。

“光滑”和“镜子”创造的错觉感,是小空间的神器,神器,神器,重要的事情说三遍!



Alexander Raschenko舒适、温暖的工业风公寓,早餐吧台很小但也是满足了业主的要求。


绿色植物是一个家不可或缺装饰。


如果楼层够高的话,一定要利用,实现空间最大化。

从这里看去,才发现这个小公寓让空间扩大是自然光的引入。

卧室堆满了书籍,衣物较少,也许这不是男主人真正的家。


空间艺术设计与规划专业视频媒体平台,致力于科学人居从空间规划→艺术设计→精准选材→可持续发展等一系列产业链环节的无缝对接与解决方案的整合传播。在微信公众账号中搜索“城视窗”或“citiais”,或用手机扫描左方二维码。我们将为您推荐行业最新、最热、最好玩儿的资讯!
网友评论
(共 0条)查看全部