

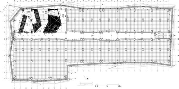
扩建工程需要占据草场和橡树林空间,因此必然会影响现有区域景观,但我们仍希望能够继续保留这片区域的历史、记忆和原有形态。E8大楼中部 镂空,它升起于地面,飞翔在空中,面朝四周风景,让自然风景得以完美呈现。建筑和景观的融合十分重要,同时也是人文精神的体现。然而更为重要的是,将来有一天若自然景观消失,这座人工筑造的玻璃折叠建筑将成为载有这段历史回忆的记录体、寄存器和捍卫者。

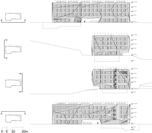
E8大楼采用了控制气候的策略,将其立面分为两层。内层是独立的防水外壳;外部是可通风的包覆层,如遮阳伞一般为大楼阻挡强光。冬季,内外 层之间的空间如同一床棉被包裹着大楼,抵御外部的严寒。夏天则通过气压差降低内层立面的温度。这样可以极大地降低能源消耗,减少排放。



“圆形”的体量被赋予了人文精神。通常,我们喜欢以由内向外的角度去思量和规划最重要的视野及建筑结构,大楼为使用者们敞开了一幅美丽的图景。 这是一座最具挑战力、最人性化和最振奋人心的建筑!









空间艺术设计与规划专业视频媒体平台,致力于科学人居从空间规划→艺术设计→精准选材→可持续发展等一系列产业链环节的无缝对接与解决方案的整合传播。在微信公众账号中搜索“城视窗”或“citiais”,或用手机扫描左方二维码。我们将为您推荐行业最新、最热、最好玩儿的资讯!
本站声明:本站所刊登文章部分图片和文字来源于网络,作者查询不详,其版权属于原作者,若有无意侵权请联系本站:citiais002@163.com,我们会立刻删除。
另,本网站中的文章(包括转载文章)的版权仅归原作者所有,若作者有版权声明的或文章从其它网站转载而附带有原所有站的版权声明者,其版权归属以附带声明为准;文章仅代表作者本人的观点,与本网站立场无关。 本站标注来源为“城视窗”的图文及视频内容均为本站原创版权内容,未经授权请勿转载!
网友评论
(共 0条)查看全部