


这是设计者 Azovskiy & Pahomova 有意的安排,他们想要“提供一种全景的视野并将自然引入到屋子里,同时创造一种身在屋子里面却好像是在户外的感受。”室内也用了一种暗色调来处理,裸露的水泥墙面,黑色的地板,黑色的窗框、门、窗帘,以及难以见到的灯光,让视线集中在周围的绿色自然,忽略掉房子本身。

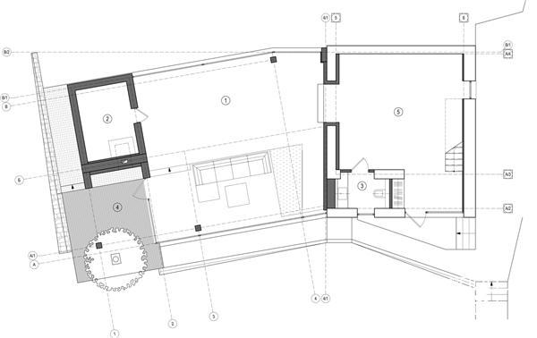
房子的主人主要用来冬夏两季度假,他很喜欢冲凉后躺在干草堆上。起居室里专门设置了冲凉的地方和一处干草堆,为了保持通透的视线,冲凉的地方也是玻璃。如果有顾忌,房子里另外有一个更私密的卫生间。此外,客户坚持不要任何电视屏幕来转移视线,所以在这个空荡的大厅里,只有一个悬于天花板之下的球形火炉。

雨水将顺着玻璃落入房子外缘的石头中

玻璃墙后面的冲凉处
楼梯是这幢房子最好看的地方,使用了悬臂式,就是一块块同样大小的木片沿着墙排列。正对着楼梯看时,它将灰色的水泥墙斜切成两半。光线从上面的缺口进入,遇到楼梯的遮挡后变成细碎的几缕光束,也让着两个部分分别代表明与暗。在暗的部分,一个小窗让光影投射到地板上将这一块又亮了一层,它给橱柜借了光,也让明暗之间有了一层平衡。




室内所有家具包括地毯都是非常方正的,光线在其中就是一个柔和的调节。
卫生间的光线也是从一道玻璃门里透过来的,但在天花板和墙面的连接处,有一层黄色的灯光渐变着洒下来,强调了两者的边缘。这样的灯光几乎没有照明的作用,仅仅调节了气氛,让房间有了更多的变化,也更加耐看。


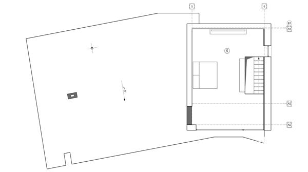
卧室在二楼,也有一整面墙用了玻璃,两层楼之间没有围栏的设计保持了整体的通透性,也很大胆。但最亮眼的还是床头的那面石头墙,这种自然的纹路说不清它的规律和变化,可以让人看好一会儿,仿佛说出了房子的主人对自然的执迷。





空间艺术设计与规划专业视频媒体平台,致力于科学人居从空间规划→艺术设计→精准选材→可持续发展等一系列产业链环节的无缝对接与解决方案的整合传播。在微信公众账号中搜索“城视窗”或“citiais”,或用手机扫描左方二维码。我们将为您推荐行业最新、最热、最好玩儿的资讯!
本站声明:本站所刊登文章部分图片和文字来源于网络,作者查询不详,其版权属于原作者,若有无意侵权请联系本站:citiais002@163.com,我们会立刻删除。
另,本网站中的文章(包括转载文章)的版权仅归原作者所有,若作者有版权声明的或文章从其它网站转载而附带有原所有站的版权声明者,其版权归属以附带声明为准;文章仅代表作者本人的观点,与本网站立场无关。 本站标注来源为“城视窗”的图文及视频内容均为本站原创版权内容,未经授权请勿转载!
网友评论
(共 0条)查看全部