当前位置:首页 > 艺术教育 > 原创设计 > 正文

温暖工业风交错,摒弃隔墙,让光线穿行其间

发布时间: 2017-01-03 20:55:03 编辑:crystal 来源: 建筑学院 浏览次数:
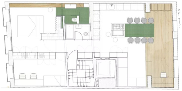
这是位于巴塞罗那格拉西亚(Gracia)城区中心的公寓。自然光线从平面矩形公寓的两侧照射入内。此概念是利用集合光线将两侧连接形成宽敞开放空间。



  设计师摒弃了所有隔断墙,使用低于天花板的家具(虽然使用了缩小间隔的玻璃外壳),因此他们完整地保留了天花板横梁,使光线能穿行其间。

  业主的要求是打造工业又温暖的风格。连续的走道和在公寓主要空间内不锈钢的使用,与光线最充足的 “木屋”起居室形成对比。

  “隔板”设施不仅能分割出走道,还能作为白天和夜晚区域的连接点,且具有多功能用途。这是一个有效且动态的区域,此区域和公寓的其他空间利用了不同的材料以及色彩,例如白色树脂和绿色杉木的对比。







图纸

关键字:温暖,工业风,巴塞罗那,公寓
相关新闻 more>>

网友评论

(共 0条)查看全部
验  证  码: 只允许输入140个字
(网友评论仅供其表达个人看法,并不表明本站同意其观点或证实其描述。)
Art
友情链接
>>