▼建筑给人一种轻的,漂浮的感觉

面向庭院的家庭房拥有很高的天花板,在北侧和南侧都开设条形高窗。延伸出的1.8米的檐部会遮挡一部分从窗户倾斜而入的自然光,此外建筑轮廓的看似很薄的外边缘给建筑带来一种轻的,漂浮的感觉。从传统的茶馆得到的灵感,房间的藻井,被分割为1.2米*1.2米方形格子,这种结构有些类似寺庙和sukiya风格的结构。天花板不仅用作于支撑屋顶重量的结构,而且使得建筑本身就是一件极简主义的艺术品。
▼面向庭院的家庭房拥有很高的天花板

▼房间的藻井,使得建筑本身成为一件极简主义的艺术品


建筑与艺术品,精心设计的家具,照明完美的结合,创造出一个个性且不繁琐的空间表达。最终,建筑成为了一个“如同博物馆一般的住宅”而非一个住宅形式的博物馆。
▼建筑与艺术品,精心设计的家具完美的结合,创造出一个个性的空间表达

▼主卧室采用单色系配色

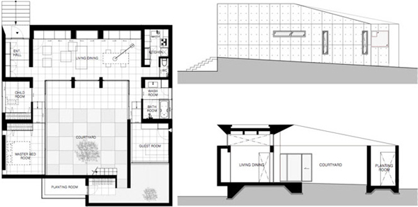
建筑的布局十分的简单,中心布置了一间家庭房,它对一个中心庭院开敞,围绕庭院的一侧布置了主卧室、儿童房,另一侧布置了兴趣屋。整个建筑的对称式布局给人一种西方式住宅的形式,但其实单侧私人庭院以及台阶的设计破坏了传统日式的对称。
▼被灯光点亮的建筑更像一件精心制作的艺术品



▼平面图/立面图/剖面图

网友评论
(共 0条)查看全部