

被视为Allied Works Architecture“迄今最具野心的项目”,配备的设施也是北美同类型建筑中最顶尖的。它横跨两个城市街区,包括160,000平方英尺(14,864平方米)大的新建建筑。

釉面陶瓷砖包裹下的建筑,是由两座高楼以穿过街道的天桥为连结构成的。以乐器形状为创作灵感的几面曲面墙和具造型感的开口,是建筑外形的重要特征。

在纽约和俄勒冈(Oregon)设有办公室的Allied Works Architecture的创始人Brad Cloepfil说,“我们试图在设计中创造出变换的空间。Studio Bell的九座楼模仿重力和传声效果而建,共同创建出能发出音乐和光芒的沉静而具力量的乐器。”场地内的原有砖石建筑,爱德华王酒店(King Edward Hotel)曾是传奇蓝调俱乐部的发源地。

该历史建筑——如今的加拿大国家音乐中心的一部分——已全被反省并设有广播室、录音室、媒体中心、教室和艺术家驻留空间,位于场地的西半部。

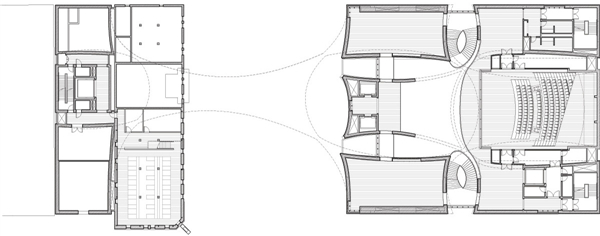
天桥将历史建筑与音乐中心新建部分连接起来。游客走入东侧建筑,进入到两侧设置了螺旋楼梯的中央大厅。
一楼设有被称为加拿大音乐广场的现场演出场地,以及展示中心概述的交互式显示屏。

二层设有主要演出厅,可俯瞰大厅并“作为建筑的中心空间的结构中心”。有灵活的座椅和可移动的隔音墙,音乐厅可以为小型演出缩小空间,也可以往外延伸,用音乐声将大厅和交通空间填满。

三层设有展览空间,探讨“音乐的生理和情感层面及其影响我们的情绪和环境的力量”。游客可以利用第四层的交互式显示屏尝试弹奏不同的乐器。
第五层内有云休息室,是“供人沉思且有美丽景色的室内开放空间”。五楼还设有加拿大音乐名人堂(Canadian Music Hall of Fame),加拿大乡村音乐名人堂收藏馆(Canadian Country Music Hall of Fame Collection)以及加拿大歌曲创作名人堂(Canadian Songwriters Hall of Fame)。

展览空间分散在五层楼间,并展示了博物馆450多年的大量音乐文物收藏。
每个展览馆都可以被视为“加拿大的音乐故事与观众互动、被欣赏和演出的地方——在过去、现在和未来——被深入了解,鼓励着游客沉浸于不断演变的音乐讨论中”。

“Studio Bell用许多不同的空间回应多样的音乐表演形式,”Cloepfil说道。“建筑创造出使人沉浸的空间,将观众和表演者、学生和教室联合起来,让观众从日常生活中抽离,而转换空间的瞬间,让人们得以静思默想。”

模型图
该新建的音乐中心旨在成为“该地区的建筑和文化地标”。同时,也有助于振兴卡尔加里的东村区(East Village)。

模型图
“国家音乐中心将成为加拿大最重要的国家机构之一,鼓舞着新一代的音乐家和音乐爱好者,并促进卡尔加里再次发展为核心市区。”该中心的总裁兼首席执行官Andrew Mosker说到。
图纸






项目信息
项目地点:加拿大 阿尔伯塔省 卡尔加里市
项目业主:国家音乐中心 (NMC)
项目团队:brad cloepfil, kyle lommen, chelsea grassinger, daniel richmond, dan koch, brent linden, kyle caldwell, björn nelson, thea von geldern, emily kappes, keith alnwick, brock hinze, philip balsiger
网友评论
(共 0条)查看全部