
设计师以卡玛王子品牌形象升级为契机,延续了公明店的自然清新风,在“不拘束、不呆板”的原则下,将设计元素聚焦于产品本身以及产品引申而来的符号,以更好地突显产品,让空间与产品达成浑然一体的融贯性,打造一个温馨宜人的美食休闲区。


在本案中,设计师灵活解构面包的前世今生,将制作面包的原材料“小麦” 引入空间,发挥想象力将“麦穗”与“麦秆”的形象多样化、丰富化、通过拆分整体、提炼细节,真正做到一麦多用,整个空间充满了产品的各种元素,重新诠释卡玛王子的天然概念。


天花上的发散式灯具均是一捆捆“麦穗”“麦秆”意象简化、创新、重组的结果,清新的麦穗意象与质朴的原木具象达成共识,为整体空间嫁接上温馨的灯光,同时与地面上的线型图案对照、呼应,为空间注入新鲜活力。


居中的面包柜台一改以往“上透下实”的配置,变得通透、一目了然,因而上层陈列面包产品,下层则堆放了整齐的面粉,并用数捆麦穗辅以装饰,较之以往,给人更直观的空间联想,突出产品品质。

根根分明、粒粒细致的麦穗经由设计师简化、排序、整合后形成一套灵活适用的麦穗方案,在本案中这套麦穗方案用于门头外观、空间内部墙面,展现内外一致的整齐感,相映成趣。

元素演变方案
空间墙面上悬挂着卡玛王子的时新产品灯箱,一灯两用,既有广而告之的新品展示作用,同时以间接光的形式点缀空间,增添亮色。



店面外观
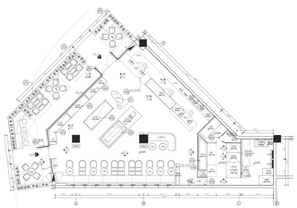
在平面的布置上,设计师结合店面的原本形状,将饮品蛋糕区、面包选购区、休闲用餐区简单分割,三方呈三角形三条边的形状分列,不仅视觉上空间小而有序,实际运营起来也是动线流畅,无论食客们选购或是用餐,都方便快捷。


平面图
项目信息
项目名称:卡玛王子(保利悦都店)
设计单位:深圳市艺鼎装饰设计有限公司
设计师:王锟、echo、叶俊峰、汤璃
主要用材:大理石,美岩板,钢板,木纹铝通
项目面积:100㎡
项目地址:深圳市龙华街道龙观东路保利悦都A区一层
完工时间:2017年8月
摄影师:江南摄影
设计师个人简历

王锟,国内著名餐饮空间设计大师,深圳市艺鼎装饰设计有限公司创始人兼设计总监,深圳市室内设计师协会理事,中国建筑装饰协会会员,中国装饰协会会员。曾多次获得设博会“年度杰出设计师”、金羊奖“中国百杰室内设计师”、大中华区十佳餐饮空间设计师、IDCF“品牌设计师风云人物”、深圳市年度最佳室内设计师等荣誉称号,其设计作品也多次获得金堂奖、艾特奖等业内权威奖项的肯定,并被誉为“黄记煌御用设计师”。
网友评论
(共 0条)查看全部