
建筑师: LOVE architecture and urbanism
地点:德国 HafenCity
项目面积: 3,150 平方米
项目年代: 2005 – 2008
摄影: LOVE architecture and urbanism
在汉堡的港口城,一个面积157公顷的新街区直接建在了港口边上。除了具有综合用途,相关的城市开发概念还需要建造高质量的建筑。因此,每一座建筑都进行了独立招标。

来自格拉茨的LOVE建筑与城市设计事务所赢得了Baufeld 10公寓楼的设计竞赛。项目基地位于Dallmannkai内的一片区域内,就处在水边,与Elbphilharmonie非常接近,Elbphilharmonie是一个音乐厅,目前正由赫尔佐格&德梅隆事务所的瑞士办事处进行设计开发。共有26家建筑事务所在Kaiserkai获得了项目委托。

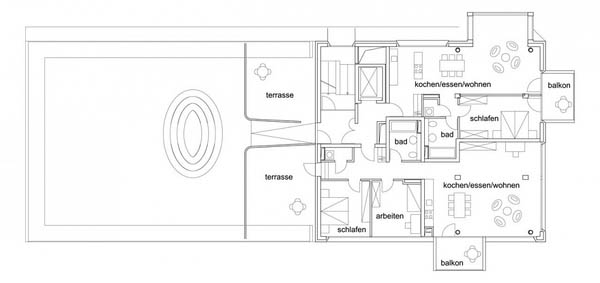
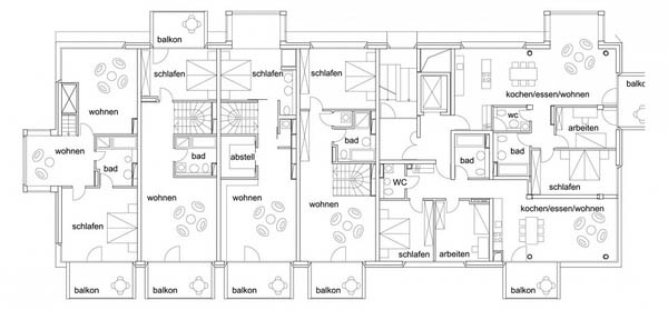
LOVE事务所面临一个特殊的挑战:Baufeld 10公寓楼是一个合资建筑项目。这意味着将来会由众多不同的住户为新建筑创造一个真正的社区。因此,大家共同合作,朝着建造他们的共同家园这一目标而努力。建筑类型必须满足这种期望。因此建筑内容纳了多种不同的类型,包括所有的配套标准——从超大的公寓(最大达225平方米)到小公寓(50平方米),而且有着完全不同的设计——从单层公寓到四层的复式公寓。

个性化是Baufeld 10公寓楼设计最先考虑的因素。现在,28个新住户中的每一个在自己的公寓内都可以享有自己的生活方式,无论公寓是水平的还是垂直的,无论公寓是大是小。这些不同的公寓融合在一座建筑内,满足了所有人的要求。

从外面看,公寓楼是一个由多个稍微倾斜的立方体组成的闪闪发光的白色结构,上面设置了稍微倾斜的大尺度开窗。这些窗洞的设置与其后的公寓布局十分匹配。每一个公寓都有一个阳台和/或凸出于建筑的凸窗。在排列紧密的建筑中,这样的设置方式能在理想方向上获得最大的视野,也就是朝向海港的视野。









网友评论
(共 0条)查看全部