法国建筑师向巴西的献礼
在Christian de Portzamparc看来,每个项目所在的国家、选址、地区、气候、文化都是建筑师的考量因素和灵感来源,从而设计出独具地域特色的专属建筑。目前正在施工阶段的卡萨布兰卡大剧院获得了2009年的国际建筑设计大奖。此外,中国苏州、上海的歌剧院项目由他担当建筑设计,项目还在筹划阶段。以下为他在巴西里约热内卢的优秀项目——Cidade Das Artes艺术馆介绍。
Cidade Das Artes艺术城,巴西,里约热内卢
Ciade Das Artes艺术城坐落于依山傍海的巴西第二大城市——里约热内卢,位于巴拉达蒂茹卡(Barra da Tijuca)新区Americas与Ayrton Senna大道交汇处。这个道路交叉口由著名城市规划师卢西奥·科斯塔(Lucio Costa)设计。这里的周边环境颇为单调,城市属性不强,缺少公共空间。艺术城选址于此,将作为城市景观以地标性建筑的姿态矗立于两条高速公路的交汇处。

该建筑是用一座庞大的结构支撑起来的小型城市,这座“城市”建立在一个距离地面10m的大型平台之上,人们可以在这里远眺山和海。建筑如同悬浮于它脚下那片公共花园上方。

2002年开始委托设计,终于在2013年竣工。2014年在巴黎举行的法国建筑设计大奖赛Grand Prix AFEX上,由克里斯蒂安•德•鲍赞巴克(Christian de Portzamparc)设计的Ciade Das Artes艺术城从数十个优秀的候选项目中脱颖而出,打动了评委摘得桂冠。

该项目是对巴西本土建筑的献礼,亦是对法国建筑师海外作业的至高肯定。如其他国际协作项目一样,该项目的实施过程复杂而漫长,但最终在巴西树立了成功的标杆。


Ciade Das Artes艺术城堪称里约热内卢州的新地标,浮于空中的建筑设计令其成为了新的城市象征。这番独具匠心的设计呼应了海面地平线与锡耶纳大西洋山脉延绵起伏的优美轮廓。对于乘坐火车来到Ayrton Senna大街站的旅客来说,Ciade Das Artes艺术馆无疑是他们通往Barra da Tijuca新区的大门。

项目建于离地10m的巨型空中平台上, CiadeDas Artes犹如一座空中小城一般,人们可以在此观山望海,欣赏迷人的自然风光。





下面那片富有热带与海洋气息的花园出自著名景观设计师费尔南多·夏赛尔(Fernando Chacel)之手,而这个空中平台亦是一个漂浮的热带公园,人们集结于此,各种设施交集于此,城市生活汇聚于此。


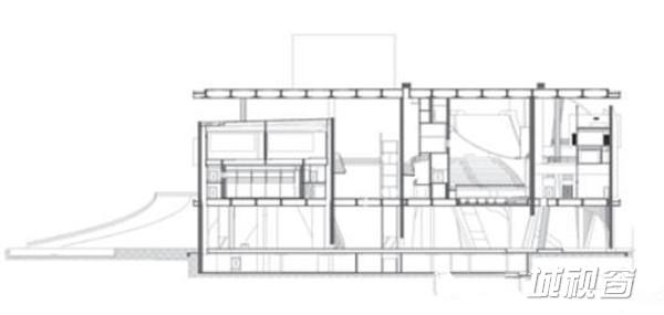
Cidade das Artes艺术城的主要功能设施包括:大型音乐演奏厅、室内音乐厅、电影院、舞蹈教室、众多排练室、展览场所、餐厅,以及一间多媒体图书馆。




建筑平行的屋顶与平台之间连接着一面面弧形混凝土墙体,勾勒出音乐厅的轮廓。艺术馆就像悬于城市空中的一所大房子、一片大阳台,项目设计参照了巴西当地多露台的常见建筑形式,也表达了建筑师对巴西传统建筑的敬意。










设计图纸







克里斯蒂安•德•鲍赞巴克(Christian de Portzamparc)
项目概况:
客 户:里约热内卢市政厅市政文化秘书处
建筑设计:克里斯蒂安•德•鲍赞巴克(Christian de Portzamparc)
声学设计:Xu Acoustique(Xu Ya Ying)(法国),Acùstica & sônica(巴西)
舞台设计:Changement à Vue-Jacques Dubreuil (法国),Ze Augusto Nepomucen (巴西)
景观设计:CAP,Fernando Chancel
总建筑面积: 90 000m2
Ciade Das Artes艺术馆设施一览:
文娱设施:Philharmonic大厅(1 800座)同时可用于歌剧厅(1 300座),室内音乐厅(500座)、电子音乐厅(180座)、巴西交响乐团总部、音乐学校、10间排练室、一间多媒体图书馆。
其他设施:三个电影放映厅、餐馆、商店、行政办公室、设备间以及停车场
获奖情况一览:
2014年,荣膺“Grand Prix AFEX of the French architecture in the world”,由法国海外建筑师协会(theassociation French Architects Overseas)颁布。
2012年,荣膺PINI prize一等奖,由巴西报业集团Editora PINI颁布。
2008年,荣膺国际建筑大奖(International Architecture Awards)全球最新颖设计奖,由TheChicago Athenaeum颁布。
网友评论
(共 0条)查看全部