范曾艺术馆以收藏和研究范曾作品为目的,而范曾先生是从南通走向世界的著名书画家、国学大师。很自然地,这座建筑从诞生之初就与中国传统文化密不可分。它以有界的建筑形体渲染出无形的水墨诗境,以当代的建筑语言传达出简淡疏放,文雅空灵的古典内涵。外表浑朴简约,内里乾坤暗藏。

来自建筑师的介绍:范曾艺术馆以书法、绘画和诗作的展览、交流、研究及收藏为目的,由艺术家范曾及其家族创立于南通市。
范曾艺术馆的设计概念源自中国的传统空间元素“院”。为了营造“古法新意”的空间氛围,将游览行为与观想结合一起,设计者将院落从物化环境中分离。


关系的院落
这首先反映在三个不同形式的院落上:一层的“井院”,二层南北贯穿的“水院”和“石院”,三层的“合院”。这样,叠合一起的立体院落得以建立。最初,“叠合院落”的理念是为了化解建筑的体量,将一个大的体量转化成三个较小的体量,院落的尺度会变得更适宜人体的尺度,可以更容易去感知和体会。设计者从网格化的控制体系中跳脱出来,转而推敲局部之间的关系,打开了新的局面。看起来不相干的院落,又自成体系,彼此间不同的关系变得出乎意料地充满变数。



观想的院落
并置的局部关系能够表现在空间序列上,因此人们可以去参观和欣赏。场景的割裂使院落之间的关系次第浮现。他们虽然并置于场所之中,我们依然可以认识到之间的顺序和关系。它们在我们的心中彼此关联,交织出混合的整体。


艺术馆采用“弥散的边界”,以展品散布陈列的方式打破展馆通常所出现的隔离,创造了一种神奇的空间,这里没有特定的道路,可以各处穿行。这种叙述模式由路线和体验所主导,永远不会产生于中心化的展览。它改变了障碍和通达原本对立的概念,温和平缓地为游客指引充满试探性的通道,而又避免令人生厌或者生硬直白。这正是东方的迂回曲折之美。


艺术馆的设计从“关系前置”的角度入手并向前推进,切入点是和中国人有着紧密情感关联的“院”。但是,和中国传统院落空间中强调单元的趋同性与关系的同构性不同,“关系前置”的概念希望局部的生成建立在自我生长的意义之上,因此局部之间以非先验性的甚至是异构的关系相连接,使整体呈现出更多的可能性与丰富度。

意境的院落
范曾艺术馆遵循“少即是多”的理念,精心控制存在之物,在含蓄的外在下蕴藏华彩。它并没有用一个强大的整体框架和清晰的逻辑去叙述整个故事,因此三个不同的院落产生了相对灵活和自发的局部关系。“进化关系”的主题意味着关系自身的进化相较于每个单体的进化有更为重要的作用。这样,设计重构了三个院落的关系,但是院落自身并不需大的改变。三个原型简单的院落和传统形式相差不大,但是经过彼此的关联与交融,它们有了不同寻常的表达可能性。如今,我们通常提倡传统之下的现代精神,所谓的现代和传统并不仅仅有赖于形式,同样也需要对精神的转化与升华。


在此理念基础上,范曾艺术馆构架起以井院、水院、石院、合院为主体的叠加的立体院落。“叠合院落“的初衷是期望在受限的场地上化解建筑的尺度,将一个完整的大体量化解为三个更局部的小体量,这更便于设计师以身体尺度完成对院落的诠释。作品从类似于网格化的控制体系以及整合全局的大秩序中脱身出来,从局部的略带松散的关系开始。三种院子由于各自的生长理由被聚在一起,由于连接方式的不同而出乎意料的充满变数。整体建筑如同一个可以水墨浑融的空灵腔体,为浓进淡出的晕染留有发挥的余地。



范曾艺术馆是一个优雅的腔体,水墨交融,浓进淡出,晕染空间。它以一种向水墨画致敬的态度,在小小方寸地,收纳乾坤,于简单的单体中蕴藏整体的复杂,以一种纯粹的精神散发丰盈的魅力。

图纸

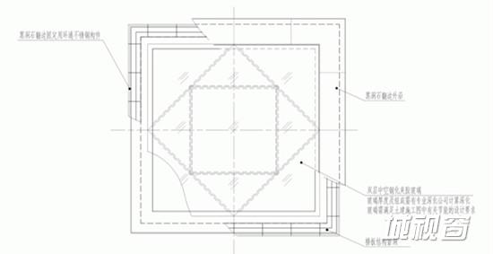
↑图解

↑图解

↑图解

↑总平面图

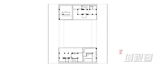
↑一层平面图

↑二层平面图

↑三层平面图

↑四层平面图

↑剖面图

↑剖面图

↑南立面图

↑西立面图

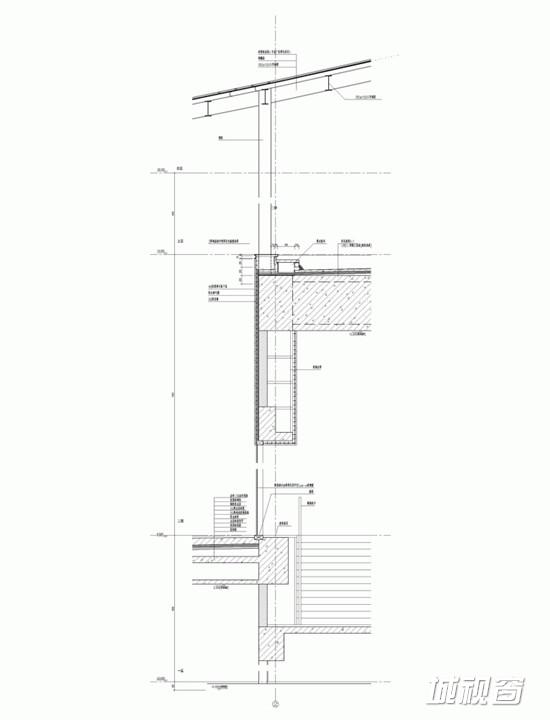
↑节点图

↑l节点图

↑节点图

↑节点图
项目信息:
设计:原作设计工作室
地点:江苏南通
设计公司:同济大学建筑设计研究院、原作设计工作室
投资者:南通大学
面积:7028平方米
建成时间:2014
翻译:建筑学院-王峰
网友评论
(共 0条)查看全部