一、委托人:传统手工艺品毛猴传承人 郭氏夫妇
“毛猴”,对于大部分人来是一个陌生的词汇,常常让人误认为是自然界猴子的某个种类,其实是流行于道光年间传承至今的一种老北京汉族传统手工艺品,手工艺人通过蝉蜕、花蕊等素材进行创作,塑造某个生活场景或者某个人物形象的一种艺术品,目前已经成为非物质文化遗产之一。什刹海后海大金院胡同11号是郭氏毛猴之家,居住于其中的郭氏夫妇就是毛猴手工艺传承之一,十几平米的面积,既是他们的生活,也是工作和毛猴展示售卖空间。

老房展示的毛猴

郭氏夫妇
二、旧房问题: 18平米的空间,灶台放马桶上,拥挤不堪
设计师刘道华第一次走进郭氏毛猴之家,只见一层摆放着各种毛猴、生活用品等物件,不到18平米的空间,充当着客厅、餐厅、厨房、卫生间、厨房、洗浴间、工作室、毛猴售卖展示区等多个角色,而厨房、卫生间、洗浴间、工作室位于同一个空间,其中做菜的灶具直接放置于马桶上面,洗浴的空间只有几十厘米,仅仅只能容纳一个人,连身体都无法转动,而二层除去楼梯入口面积,也只有12-13平米左右,而因为放满各种生活用品、家具,连床都无法安放,郭氏夫妇平常只能打地铺解决睡觉问题,他们唯一的孩子只能在外租房度日。
为了更加深入、详细地了解房屋的问题,设计师刘道华特地在郭氏夫妇家住了一晚,他说,特别不方便,早上起来只能一个一个地排队上卫生间、刷牙洗脸,当所有人都洗漱完毕之后,才能开始做早餐。而卫生间只有一间,患有糖尿病的郭氏夫人,夜间常常要跑到楼下解决问题。“真的无法想象这个空间,让人怎么去生活”,看到作为非物质文化传承人的生活如此不方便,设计师刘道华心里感触颇深。
房子除了面积特别小,功能区划分混乱,同时,还存在着保温、防潮、层高等多个问题。

改造前外立面

一层 灶台直接放在马桶上面

改造前的洗浴间

一层 郭氏夫夫妇毛猴制作工作区

改造前的楼梯

二层改造前的空间

二层 郭氏夫妇卧室
三、设计最大挑战:前期规划 十几个设计方案被推翻
对于经常做上千平米面积的餐饮、办公室空间设计的刘道华来说,这样一个项目确实是非常大的挑战,正如他所说,“餐厅或者办公空间,给我们充足的面积,可以发挥我的特长去做层次、做造型,但是这个项目只有十几平米,而家庭住宅在满足功能的同时,也必须具有美观舒适性。同时,建筑整个外立面,不能做大幅度的改造,而作为设计师来说,恨不得将整个房子拆掉重建,因此,对我们的限制非常多“。
为了空间达到舒适和美观兼具的效果,设计师刘道华和他的团队,在前期平面和交通流线的规划方面,花费了大量的精力,方案在短短的十五天之内做了十几个版本,尤其是楼梯位置的安排,更是大费周折。在最早的方案中,设计师刘道华规划将整个屋顶揭开,往上加建,楼梯的位置进行变动,但是因为房子是属于政府,私人不能随意对外立面进行加建改造,因此又将楼梯位置设计到原来的位置,后来几经周折,把楼梯位置移动到大门入口处左侧,又因为这个位置一层高度是2米,二层只有1.5米,所以将空间做了挑空处理,靠近街道的两个窗户刚好解决了采光问题,同时,挑空处理也便于一层和二层的通风。当楼梯的位置确定好之后,其他的功能规划便顺利地依次展开了。

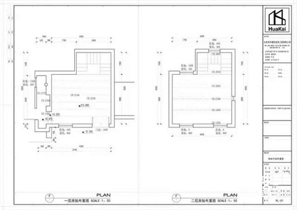
原始平面图

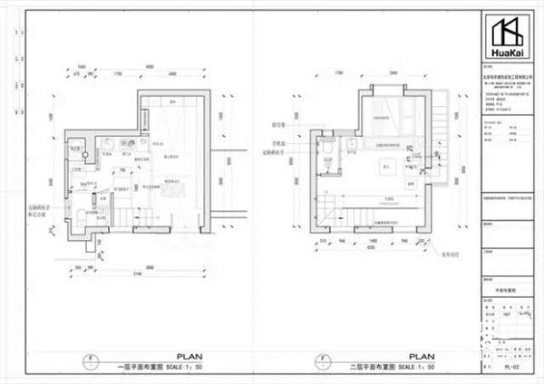
改造后平面图

外立面全景图



一层平面图


二层平面图





剖面图
四、总体设计思路:打造“家庭艺术博物馆”
郭氏毛猴之家,并不是完全的私人住宅空间,同时,还兼顾毛猴制作和展示售卖的功能,因此设计师刘道华在规划整个空间的时候,采用了“家庭艺术博物馆“的设计概念,一层因为毛猴彩色丰富,所以采用沉稳、安静、简单的黑白灰色调,营造出具有艺术博物馆展示功能的精致空间,而二层以暖色调为主,色彩丰富,温馨舒适。

改造后外立面


改造后的外立面窗户
设计师刘道华对一层原先混乱的功能区做了合理的规划,同时,最大限度地利用有限的空间,满足郭氏夫妇生活工作的需求,比如,白天作为展示售卖毛猴的背景墙,晚上翻转过来就是一个床,旁边的维拉屏风打开之后,就是一个私密的空间,成了郭氏夫妇孩子的卧室。同时,因为郭氏夫妇制作毛猴的过程是保密的,因此维拉屏风的设计,还将开放空间和生活工作隔离开来。毛猴的展示区也并不仅仅限于一层,将地面、墙面、中庭甚至吊顶都做成了展示区。墙壁上的增添一郭氏夫妇为原型创作毛猴的原创漫画,让空间灵动而调皮。另外,原先在房子中厚重的墙壁被打掉,洗手间、淋浴间、厨房、餐厅,各个功能区分离出来,抽屉式菜板、多功能桌子的利用大大地提高了空间的有效利用率。

一层改造后的毛猴展示售卖区


一层改造后毛猴展示售卖区夜间成卧室

保留老房子栓马柱作为展示



一层改造后的餐厅和厨房

一层改造后的楼梯和卫浴空间

一层的挑空空间

一层改造后的窗户和原创漫画
二层,作为郭氏夫妇的私密,设计师刘道华在墙面设计了一个床,床底下有储物功能,墙上同时也兼具储物功能,同时,设计师刘道华考虑到郭氏女主人患有糖尿病,每晚要去三四次卫生间,于是在二楼增添了卫生间功能区,另外,还放置了沙发、电视、小桌椅,成了简单的客厅。因为空间面积狭小,设计师并没有做太多的造型,只是将原来的梁木裸露出来,同时,在二层开了窗户,通过窗户可以看到什刹海风景,成了家中一副随着四季变化的风景画。




改造后的楼梯

二层改造后入口处



二层改造后的小客厅


二层裸露的梁柱





二层改造后的卧室卫浴间
五、设计感悟:设计跟美观并无多少关联,更多是对人性的关怀
郭氏毛猴之家,在短短四十五天之内已经顺利完工,对长期从事餐饮、办公空间的设计师刘道华来说,是一次大胆的尝试,同时,收获也颇多,他说,最大的收获,来自对以往设计思维的冲击,以及设计对人性关怀的注重,比如,因为郭氏男主人患有哮喘病,一到雾霾天气和冬季就会缺氧,要吸氧,要搬着氧气罐上下楼特别的不方便,于是我们为他打造了一个氧气系统,在二层直接就可以吸氧,这样的设计跟美观并无多少关联,更多是对人性的关怀。设计是为人服务的观念,不仅仅适用于住宅设计,同样也适用于餐饮办公空间。
设计师简介

刘道华
高级室内建筑师,北京华开建筑装饰工程有限公司设计总监,北京市建筑装饰设计院副院长设计七所所长。
获奖经历:
1、主持设计的北京华开建筑装饰工程有限公司办公室荣获2011年《中国金堂奖室内设计大赛》办公类优秀奖和2013国际建筑装饰双年展办公类最佳奖。
2、大董富春山居店荣获2013年《中国金堂奖室内设计大赛》餐饮类金奖。
大董烤鸭店”系列作品设计荣登在《id+C》、《时代空间》、美国《室内设计》中文版、《古典工艺家具》、《TRENDS》。
3、作品“北京大董烤鸭工体店”荣获2014“照明周刊杯”中国照明应用设计大赛北京赛区商业空间一等奖,全国赛区银奖。
4、作品“北京大董烤鸭工体店”荣获第五届中国国际空间环境艺术设计大赛筑巢奖银奖。
5、作品“北京侨福芳草地小大董店”荣获2014年《中国金堂奖室内设计大赛》“年度十佳餐饮空间设计”。
6、作品“北京小大董”荣获2015“照明周刊杯”中国照明应用设计大赛北京赛区商业空间一等奖。
7、荣获《interiordesign》美国室内中文版2015年年度封面人物。
8、2015年广州国际设计周中国设计星导师。
代表作品:
大董上海店,大董华贸店大董芳草地店,大董餐饮郑州店、大董北京团结湖店、大董北京工体店、大董纽约世贸中心店、西贝莜面村,华夏银行、乌鲁木齐分行、美克集团环球总部、美克美家国际家具标准店设计、中电投顶层会所、东北电网综合楼、内蒙古乌兰恰特大剧院、陕西省公安厅办公楼、国家会议中心、北京总参高级会所、慧喜文化传媒会所。

空间艺术设计与规划专业视频媒体平台,致力于科学人居从空间规划→艺术设计→精准选材→可持续发展等一系列产业链环节的无缝对接与解决方案的整合传播。在微信公众账号中搜索“城视窗”或“citiais”,或用手机扫描左方二维码。我们将为您推荐行业最新、最热、最好玩儿的资讯!
网友评论
(共 0条)查看全部