【泰国都市农场】
Coro兄弟在风景如画的泰国小镇,愿拼县(Suan Phueng)拥有一块田地,于是他们将种类繁多的农产品和平静的田园生活引入城市。项目的第一阶段工程,占据了地块与城市接壤的边缘地带,园区内有蔬菜、瓜果,各式各样的农业作物。而在相邻的建筑内,则展示着来自土地,自产自销的农产品。

▼城市中的田野



▼跨度1.5米的框架网格系统结构覆盖了整片场地





▼通向工作坊的小路

人类与植物共享着这同一片小小的天地,
灵活的设计让场地也可随需要拓展,
举办不同类型的活动。
从种植作物的需求出发,
跨度1.5米的框架网格系统结构覆盖了整片场地,
可统一开放、或封闭的各类空间。
结构、表皮、服务设施、
空间格局等等结构系统相辅相成,
划分出不同的功能区域。
▼人类与植物共享的小天地

▼建筑形式也呼应网格系统

▼室内外空间无缝过渡


▼同样是简单的钢构,
同样是用餐的桌椅,
却在设计师的精心安排下,
让这处农场餐厅充满了清新淡雅的气氛,
很自然,很舒适,很有态度。



▼绿意中的卫生间


可移动的建筑表皮围合出不同封闭性的空间,
而可移动的家具系统则改变着场地的使用方式。
依附于框架结构的电力传输系统灵活多变,
可适应不同的活动内容或空间布局而使用。
▼远端的顶棚可随需要移动

▼滑动顶棚细部


▼滑动结构剖面

▼可移动家具设计


层次丰富的功能与建筑结构被整合成一个统一的整体,
具有极强适应性的园区成为了,
一片充满了创造力和多样性的小天地。
▼ 夜景

▼建造过程

▼平面图

【良田雅舍】
没有传统苏州园林式的繁复,也没有大型农庄小镇的恢弘叙事。位于杭州双浦镇上杨村的木易园农庄,以小见大、融于自然,以现代设计手法结合传统乡土材料与地域文化建造而成。

散落布局,与自然交错相融
园区内主要的功能空间呈分散型布置,
差异性的院落布局,
像是面山而营的乡土聚落。
建筑体块之间相互交织,
疏密有致,与景观咬合渗透,
轻质的连廊与茂密的树冠给了建筑一种漂浮感。

灰空间占建筑面积的40%左右,
有效地扩大了建筑与环境的接触面,
增加了使用空间的休闲性。
林木、水景紧密交融,
人工建筑与自然环境汇成一体,
既保有了建筑本身的个性又将其掩映于自然之中,
形成一种延绵的尺度、韵味和形式,
赋予了建筑更强的生命力。

架空构造,拓展空间使用功能
木易园的整个建筑以点状基础,
通过架空钢结构的形式构建主框架,
既解决了建筑的地面通风和防潮问题,
又有利于减少对耕植土的破坏。
同时,
安全舒适的环境可容纳多功能的使用:
花房、餐厅、会客区等,
交错而置,
营造出归属感和私密性较强的公共活动空间。

建筑师通过多层次的空间构造,
将室内空间向外伸展,
把大自然的景色引入室内。
绿化、景观、小品都寻求到合理的秩序,
室内空间的舒适环境与室外空间的自然因素
公私并存、内外交融,
建筑好似从大自然里生长出来。

乡土材料,原生态的映射
建筑上部采用木材、玻璃
和一些原生态的青砖作为主要材料,
更加贴近自然。
玻璃面对环境产生了一些反射,
又将室内的景观透射出来,
反射和透射之间形成了外部与内部的影像叠加,
模糊了室内外的空间界限,
使建筑与景观相互融合,
达到一种轻盈通透的效果。

屋顶上采用了遮阳格栅,
外加连续金属挑檐,
既形成了传统屋面的一些肌理,
也起到了实际的遮阳功效;
室内的实木构造带来了传统木作建筑的隐喻;
青砖砌筑的围墙也颇有中国传统建筑的特色。
渗透在多处的细小元素,
渲染出乡土农家的文化特性。

这些传统的乡土材料,
随着时代的变化,
在自然属性上又增长了社会属性,
赋予了建筑以大地的衷情、
生命的活力和人性的温暖,
让建筑在现代的设计手法中,
体现出传统空间的意蕴和生活情怀。
农庄意象,延续当地风土文化

“环保、自然、休闲、养生” 是设计初衷,
建筑师将 “农庄” 作为木易园的主要营造意象,
让建筑的使用空间与农业生产相结合,
合理设计了功能流线,
整理庭院空间,
并通过传统自然的材料与乡土建筑的造型,
使木易园与当地的环境秩序、
建筑形式、风土文化、城市景观等相契合,
在营造舒适空间的同时满足了地域文化的特性,
创造出更具文化精神内涵的作品。

传统元素、自然生态及农业生产,
延续了中华民族传统的农耕文化;
而融入地方情感的乡土材料,
也体现了建筑师对当地自然环境、
文化的尊重及对人的关怀。
如此,
这座兼具现代设计和传统风味的小型农庄,
在提供休闲时光的同时,
更延续了人们的文脉记忆。
【蓝城实体“农庄”】
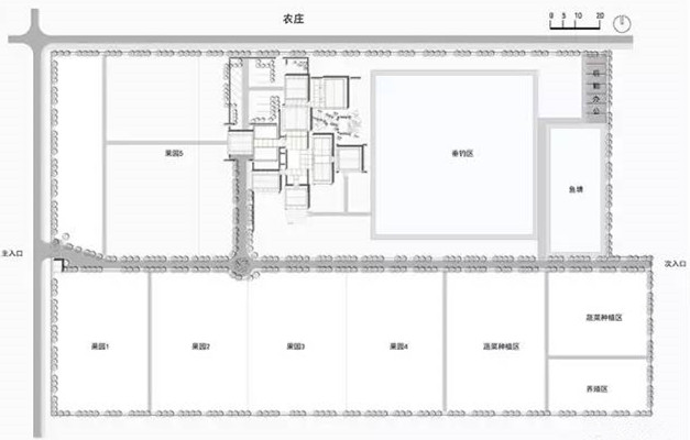
▼架空层上的合院


农庄占地面积约20亩,
主体是一栋落地约500㎡的中式宅院。
户外,便是前庭、后院、菜园,
再到大片农田和果林的“庭院园田”四级体系。
主体建筑一层架空,
二楼是一个合院格局,
青瓦白墙木柱,
环绕着凉廊、露台和灰空间。

架空层高3.9米,
做成了一个高科技农艺空间:
有A字抱架水培、垂直多层水培、
基质培、立柱栽培……
这样造房子不占用耕地面积。
一楼仍用于农业生产。
一个32㎡的垂直多层水培,
种菜面积就有160㎡,
产量是传统的3—5倍,
还可以半自动或全自动管理。

沿楼梯走上2层的合院,
室内是朴素的装修,
游廊下摆着露木的中式长桌。
建筑面积只有143㎡,
有3个房间,2个卫生间,1个大厅,
还有一个厨房加工区,
南向面宽18.8米。
中庭长宽约7.6×9米,
墙面种满绿精灵、帆根、鸭脚木和阿波蕨。
一部分做成玻璃地面,
为架空层的植物提供采光。

样板房设置的功能,
有会议室、起居室和农具房,
还有一个小小的书吧。
站在巨大的露台上,
凭栏俯瞰,一派田园风光尽收眼底:
从脚下的景观小院,蔬菜花园、
迷宫和廊架,老树下的休憩区,
到近处的玻璃暖房、生态泳池……

行走在内园中,
道路都由碎石子铺成,花坛、
菜园也是用石头和木块垒起,整饬干净。


内园种植大片紫甘蓝和青菜,
边缘杂种鲜花、蓝莓,
还有专门的葱蒜韭菜区、
竹笋区和蜜蜂养殖区,
主要用以满足农场主的日常生活。
挑高的玻璃暖房,
是和朋友喝茶晒太阳的“第二客厅”。
金属大屋顶可电动开阖,
半空中悬垂下一盆盆鲜花和绿植。
还可以打开自动喷雾装置,
既浇灌植物,夏天又能调节气温。

这个“农庄”,
未来是蓝城小镇的一个产品原型,
变化在于园田的规模和建筑的面积。
中国大地上,
将会有多少都市人,
把自己的乡愁,
托付给这抒情诗般的田宅?


【柴多米农场餐厅】
这里原本是一组被废弃的办公室,而今它被改造成了一个集合农场餐厅,农产品潮湿和集市的社会活动场所。餐厅的屋顶遵循大理古城的规定做成传统的白族样式,整个亭子的立面用竹子包裹,起到过滤光线和增强形式干的作用。在这个作品中我们看到了,用最朴素的设计找到与自然的关系。






大院儿的西面是种植三角梅的花坛。
这一面的处理比较简单,
只是把花坛加宽做成一个榻,
室外就餐和市集活动的时候可用作长凳,
市集熙熙攘攘的时候,
也是小朋友们相聚的场所。



以上的农庄通过建筑师们的设计与营造,
展现了建筑的艺术感染力,
通过现代设计的手法,
丰富和延续乡村地区的时间及空间,
让乡村更加丰富与多元
给乡村注入新的活力
这样的农庄,
不再是毫无生机的低端消遣,
而是有质感,有情感,有温度的消费升级,
总而言之一句话:
做农庄,也得有态度。
网友评论
(共 0条)查看全部