前卫、奇异美的设计总是能吸引人的眼球,例如今天一起君被这条 天津滨海图书馆 的微博给刷屏了

点开大图来看,会发现这个图书馆真的和一般图书馆很不一样


图片来自微博@RoxyCui
天津的这个滨海图书馆,给人一种在宇宙当中沉思的感觉。
尤其是阶梯式的暑假,呼应着球体空间,带来像是山地般绵延的景观效果,往上抬升似乎没有尽头。


图片来自微博
这个微博刷屏的图书馆,是热爱搞事的 MVRDV 设计工作室与天津规划设计院合作设计,是天津城市文化中心区的一员。
奇特的不只是室内重峦叠嶂的设计,图书馆建筑外观也很有意思

可以看到一个椭圆形的开口,就像一只巨大的眼睛,所以也有人称这个图书馆为「滨海之眼」。
这个眼是如何建造起来的?我们先来看看图书馆建筑形体的构成分析。
为了方便你能够更直观清晰地看懂,我特意做了一张示意动图

那颗大圆球「滚进去」以后,基本上就是处于中心的位置。其他的所有设计都是围绕大圆球来进行,也因此形成了一个眼睛的样子。

建造过程图片来自微博@滨海文化中心
为什么要设计成这样?不觉得一个大眼睛瘆得慌吗?
MVRDV 的创始人 Winy Maas 解释说,「“眼”是整个图书馆的核心空间。在这空间内林立的书架不仅成为万千本书籍的安放所在,还创造了休息、阅读、会友和攀爬的空间,是一个生机勃勃的公共场所。」
滨海图书馆有“滨海之眼”之称,该图书馆最大的特点是其内部的球形多功能厅。这个球形多功能厅外部建成了一个穹幕影院,40万个LED 灯珠镶嵌在全穿孔铝板上,大球的外部可以播放电影。


而且“眼”的中心是一个镜面报告厅,可以直观图书馆内部 360° 全景,是一个可以让人反思、沉思的场所


效果图来自 MVRDV 官网
那图书馆的室内设计又是如何?
围绕着「眼球」而做的室内设计,最吸引人的就是像梯田一样的书架设置,既是书架又是阶梯,还是座椅

效果图来自 MVRDV 官网
这样的阶梯式书架也设计成不同的空间格局

透视图来自 MVRDV 官网
蓝色区域是阅读区,绿色区域是思考区,橘色则是互动区。
不同颜色区域的地形也是不同的,除了用以作划分以外,也是为功能性而特别设计。
这些非常有未来感的波纹状阶梯在建筑的顶部渐渐收拢,形成了一个像是教堂拱顶的圆顶空间,贯穿上下,连接了各层。

图片来自微博
这颗球其实本想设计成镜面,为图书馆内部提供了镜像空间,创造出一种引人深思的范围,同时也增加室内的旷阔感。变成球形屏幕简直太玄了~

效果图来自 MVRDV 官网
如果你觉得这个图书馆只有这样,那就错了。
作为天津城市文化中心中的一员,光有图书空间是不够的。实际上,这幢特殊的建筑有着非常多的功能区。
来看一下图书馆建筑结构、流线和功能的示意图

示意图来自 MVRDV 官网
建筑的地上五层空间内分布着各式各样的教育设施,地下一层则有后勤服务场所、图书储存室和档案室。
儿童、老年人阅读区设在了方便到达的地面一楼,主入口连接了通往各个内部区域的路径,大圆球礼堂则占据了中央位置。
阶梯状书架一层一层抬升,用「书籍」来引导人们前进。
数个大小不一、藏书丰富的阅览室和休息区散落在二楼、三楼,最高的两层楼内是电脑室、办公室、音像室和会议室。
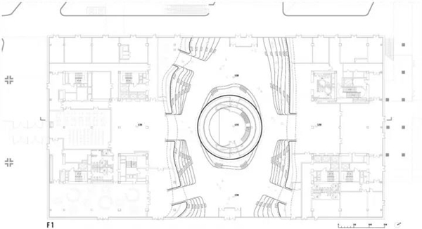
来看几张平面图,会看得更清晰

一楼平面,来自 MVRDV 官网

二楼平面,来自来自 MVRDV 官网

三楼平面,来自 MVRDV 官网

四楼平面,来自 MVRDV 官网
MVRDV 这个工作室,向来都是以奇特、先锋、创新的特点,得到很多人的喜爱,简单讲就是「爱搞事情」。
尤其是工作室的三大创始人之一:Winy Maas,他所设计的每一个房子不仅脑洞大开,还有不同的味道。

例如 CHANEL 改造水晶屋案例。
原本 CHANEL 门面小得可怜,遮阳篷和外墙涂料的组合看着还有点寒酸

后来 CHANEL 终于在街道内等到了一个大门面,准备在这里打造荷兰的旗舰店,得找一个设计大咖来搞定。
虽然平时 Maas 脑洞大到不行,但面临全球化的今天,本土特色建筑正在消逝。他想保留PC街的历史原貌,又想通过技术创新让旧店铺换新颜。


他就想到,为什么不干脆建一座童话故事里的水晶屋?这和 CHANEL 的气质也颇为符合啊!
于是他把原有的砖头表面替换成玻璃砖立面,形成了一种渐变的建筑立面效果

当设计方案确定后,市场上根本找不到符合设计要求的玻璃砖。
但他不肯妥协,就请到了著名的玻璃制作团队 Poesia 来「手工打造」,一块一块地把玻璃砖给做出来了。

经过了重重各种繁重的工作,最终水晶屋呈现出来的效果惊人,连设计师本人都惊呆了!透光的玻璃墙闪闪发光

这个玻璃墙不仅惊艳眼球,还可以抵抗一辆大卡车撞到大楼的巨大冲击力


这是当地首个使用水晶砖块再现传统建筑风貌的创新门店


不得不说,Maas 为了做到极致不惜下重本,最终出来的效果真的非常好。
换做其他设计师,恐怕会这么设计、还就真这么去实现设计的人,真的不多了。不然我怎么说他们爱搞事情?
不止水晶屋,他们也还有很多「奇特」的作品,例如在菜市场上改公寓,最后搞成了著名的旅游景点


或者为了庆祝鹿特丹战后重建 75 周年,用脚手架搭建一个「天梯」上到房顶,就为了让人等眺望远方

再比如说建了个悬空不会倒的房子,在底下荡秋千

最丧心病狂的恐怕是这个:北京改造胡同,为了缓解停车难,还想要设计房子掀起来,把车停到房子底下。不知道住在里面的人咋想…

我们回过头来再看看天津滨海图书馆。
这样子的图书馆我们见过吗?没有。它的设计奇特吗?甚至可以说有点奇怪。
那为什么还能在微博上刷屏?

图片来自微博,摄影师:zhangpeng
很简单,因为好看,而且足够特别。
图书馆一般都是方方正正,结构是怎么样的、室内怎么陈列的,很容易就能想的出来,而且大多数千篇一律。
天津滨海图书馆就不一样,它给我们的建筑、室内设计一个非常大的想象空间和启示。
而且不要忘了,这是一个中外合作的项目,项目设计并不全是 MVRDV 的功劳,相信天津的 TUPDI 也提出了非常棒的设计灵感。
很高兴国内现在能有这样的设计,也希望以后这样的作品可以越来越多。
我已经买好飞机票啦,准备周末就飞去天津看看!
项目:天津滨海图书馆
地点:中国天津市滨海区
年份:2016 年开工,2017 年 10 月开放参观
面积:34,200㎡
设计团队:
Winy Maas, Jacob van Rijs, Nathalie de Vries with Wenchian Shi, María López Calleja, Chi Li, Ángel Sánchez Navarro, Daehee Suk, Guang Ruey Tan, Xichen Sun, Michael Zhang, Kyosuk Lee, Mariya Gyaurova, Jaime Dominguez Bálgoma, Antonio Luca Coco, Costanza Cuccato, Matteo Artico and Tomaso Maschietti.
概念设计:
Winy Maas, Jacob van Rijs, Nathalie de Vries with Renske van der Stoep, Martine Vledder, Kyosuk Lee, Gerard Heerink, Chi Li, Francisco Pomares, Nicolas Lee, Claudia Bode, Sharon Sin, Jaap Baselmans, Herman Gaarman, Hui Hsin Liao, Antonio Luca Coco, Costanza Cuccato, Matteo Artico and Tomaso Maschietti.
合作方:
合作建筑师:中国天津市城市规划设计研究院建筑分院(TUPDI)
网友评论
(共 0条)查看全部