▼周边环境


▼市政厅与自然环境完全融为一体

由丹麦建筑设计事务所Henning Larsen设计的这座市政厅建筑致敬了北欧以及法罗群岛的传统建筑形式,同时也为法罗群岛的当代建筑定义出新的方向。“景观与建筑的融合向来是法罗群传统建筑的核心主题。市政厅的设计延续了这一概念,将模糊的边界作为设计的主要思路。”——Henning Larsen事务所合伙人及主创建筑师Ósbjørn Jacobsen如此解释道。
▼建筑本身成为将市民连接至河流对岸的桥梁



▼布满绿植的屋顶


▼街道视角

▼室内办公空间

▼建筑谨慎地融入了葱郁的自然景观,为政府工作人员带来自然而舒适的工作环境,

▼从地板上的玻璃窗洞中可以望见逆流而上的鳟鱼

到屋顶上野餐
Eysturkommuna市政厅还肩负着振兴当地社区的重要使命。建筑的露台和屋顶完全对市民开放,人们可以随时到屋顶上野餐,或者在河里游泳。
▼露台和屋顶完全对市民开放

▼建筑近景

Eysturkommuna市政厅是Norðragøta城区复兴计划中建造的首个项目,未来这里还将建造更多的新建筑,并举办一系列公众活动。在渔业成为主要产业并建造大型工厂之前,海滩一直是市民们集会和举办特殊活动的地点。人们会在这里点燃新年除夕夜的焰火、庆祝国旗纪念日,或者举办各类体育活动。
▼市政厅将激活河岸的社区生活

▼全景视角

▼夜景

▼场地平面图

▼首层平面图

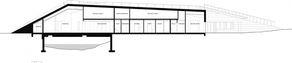
▼剖面图AA

▼剖面图BB

设计公司: Henning Larsen Architects
位置: 丹麦
类型: 建筑 景观
材料: 木材 玻璃 钢
网友评论
(共 0条)查看全部