项目宝石般的外观设计方式目的是,在不损害城市历史特征的情况下,让阿姆斯特丹成为与众不同的高端旗舰店所在地。水晶屋位于高端购物街PC Hooftstraat,最初是Chanel的临时商店,但现在经过更新,重新开业作为法国奢侈品牌Hermès的旗舰店。
▼新店铺外观

水晶屋是为阿姆斯特丹零售地产公司Warenar设计的,它被设想为是对PC Hooftstraat传统建筑的改造再生,带来了一种戏剧性的转变:传统的砖立面被玻璃砖取代,这一砖块仿制品消融于上层的传统陶土砖结构之中。
▼步骤图解

▼传统的砖立面被玻璃砖取代,这一砖块仿制品消融于上层的传统陶土砖结构之中


为了实现这一效果,建筑师需要与代尔夫特理工大学、ABT工程师、Wessels Zeist承包商合作进行一段时间的深入研究,并由玻璃制造商Poesia和粘结剂公司Delo Industrial Adhesives提供材料。最终打造了一个梦幻般的店铺正立面,将传统砖结构的复杂性与零售店立面的透明性结合起来。
▼梦幻般的店铺正立面


然而,由于Chanel临时商店对空间的要求,立面透明效果被玻璃立面上方后部、位于二层的一面实墙所削弱。在新Hermès旗舰店中,室内设计师Bureau de Binnenstad拆除了这面墙,将整层空间向外开放,第一次让访客看到玻璃砖与陶土砖紧密衔接后形成的消融效果,最终充分利用了这一创新设计所带来的透明性。
▼玻璃立面上方后部、位于二层的一面实墙被拆除

▼玻璃砖与陶土砖紧密衔接后形成的消融效果



▼陶土砖与玻璃砖紧密衔接近观

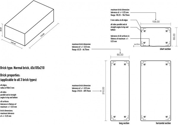
▼砖类型图



▼地下及首层平面图

▼夹层及二层平面图

▼立面图
▼剖面图

网友评论
(共 0条)查看全部