利华大厦是SOM在第二次世界大战后完成的重要作品。这一家于1936年在芝加哥成立的建筑公司,无论是作品或是执业方式,始终是美国大型建筑师事务所的标杆。在20世纪中期,他们忠实地追随密斯的设计想法,那个时期很多密斯的学生或员工先后加入SOM,对整个公司带来了不可忽视的影响。当时对国际风格有着极深成见的赖特还给SOM取了个绰号:“三个瞎了眼的密斯”(The Three Blind Mies)。

利华大厦的业主是一家英国的肥皂公司,原先计划将总部设在芝加哥,但最后还是选择了纽约。他们把基地选在了当时还是砖石公寓集中的公园大道上,利华大厦和4年后落成的西格拉姆大厦的出现,彻底改变了曼哈顿中城的形象。(有说法将利华大厦称为美国第一栋国际式风格的建筑)。

1950年,时年41岁的SOM合伙人戈登·邦夏(Gordon Bunshaft)接下了这个项目的设计任务。曼哈顿高层建筑的法规对整个建筑体量的高度和位置有着严格的限制,而邦夏还是希望保持整个大楼简洁利落的形象,不愿意效仿周围其他高层做层层退缩的处理,于是他利用了当时规范中只要高层建筑占地面积不超过基地面积的25%就可以不受退缩限制的规定。在最后的方案里他做了两个简单的水平向和垂直向的体量,将简洁的高层垂直体量置于水平体量之上,放到了基地的北侧。24层的利华大厦高度为94米,顶部三层规划为设备层使用,相比于周围更高的建筑,其简洁的体量反而给人留下印象深刻的修长感。



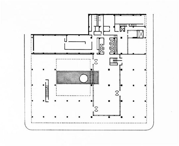
利华肥皂公司计划将利华大厦大部分的空间作为企业办公空间使用,在邦夏的设计中,他将整个地面层开放给了城市:地面层除了大堂、演讲厅和服务空间外并没有任何办公或商业店铺。同时他将面积最大的二层裙房覆盖在地面层的上方,创造出一种特别的城市空间形态—— 一些展示活动经常发生在地面层的半开放空间之中。在设计中二层和三层的空间均是被企业使用的公共空间,诸如食堂。紧邻三层咖啡厅的二层屋面提供给办公楼另一个可以活动的地面,这在20世纪中期算是一个激进的做法。

△ 地面层平面 ©SOM

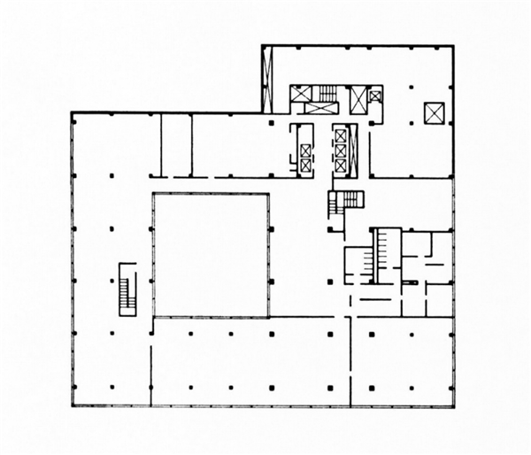
△ 一层平面 ©SOM

△ 二层平面 ©SOM

△ 剖面与标准层平面 ©SOM
邦夏于1988年获得普利兹克建筑奖,他曾经在提到利华大厦的裙房设计时说,这个没有商业空间的地面层设计当时在公司内部引起了很大的争议,应老板要求又做了另外一个相对保守、地面层带有商业空间的方案,但随即被甲方否定了。邦夏认为当时如果没有甲方的坚持,这个项目将变得毫无特点。[1]



在建成开放后,利华大厦立刻成为了纽约城中的建筑地标,不仅仅因为其建筑形象,更因为它在多项技术上的创新:首先,它是第一栋嵌入全空调系统的建筑,整个外立面被蓝绿色的玻璃幕墙包围,没有任何可开启的通风窗口,据说是为了避免城市车辆所带来的灰尘,也为建筑创造了轻薄的立面形象。其次,为了清洁玻璃幕墙,幕墙公司也开发了装设在利华大厦屋顶的洗窗设备,这是世界上第一台外墙清洁设备;最后,大厦安装了能够连接所有楼层的通信传输器。


其中最重要的建筑元素之一,就是其由蓝绿色玻璃与不锈钢组成的幕墙。这项设计既经济又美观。利华大厦立面这种去物质化的轻盈感,是通过将窗户的竖框藏在一层薄薄的玻璃表皮后面,这样它们看起来就像是漂浮着、没有重量、好似不存在结构一样。立面幕墙得以实现玻璃板的效果,达到柯布所说的“纯粹的整洁”。[2]




1985年利华公司搬出了大楼,经过几度转手,现任业主RFR在1998年开始了对整栋大楼的整修。除了解决了早期碳钢玻璃幕墙受气候影响而损坏的问题外,还在地面层加入了原设计中未能实现的野口勇的雕塑,业主的艺术藏品也经常在底层展出。
网友评论
(共 0条)查看全部