
安达卢西亚历史博物馆
建筑设计:alberto campo baeza
地点:西班牙,格拉纳达,安达卢西亚
客户:caja de granada
合作伙伴:alejandro cervilla garcía, ignacio aguirre lópez
结构:andrés rubio morán, ma concepción pérez gutiérrez
工程:r. úrculo ingenieros consultores s.a.
学生:miguel cabrillo, sergio sánchez muñoz, petter palander
项目面积:15000 平米
项目年份:2006 - 2009
摄影:javier callejas
建筑师希望安达卢西亚历史博物馆成为西班牙格拉纳达地区“最美的建筑”。安达卢西亚历史博物馆希望记录收集整个安达卢西亚的历史,而这里早在古罗马时期,就有人耕种生活。古希腊地理学家斯特雷波(strabo)将安达卢西亚的居民描述成“最文明的伊比利亚人,他们用诗文写成律法”。

安达卢西亚历史博物馆

安达卢西亚历史博物馆

安达卢西亚历史博物馆

安达卢西亚历史博物馆

安达卢西亚历史博物馆
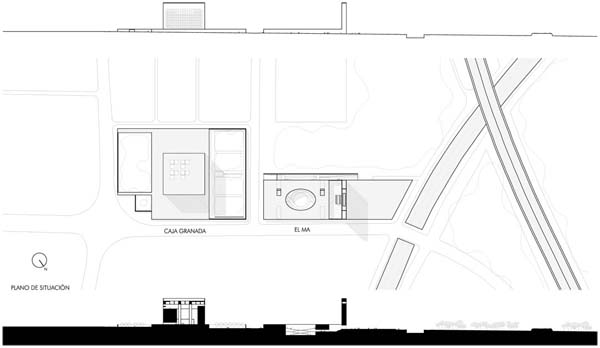
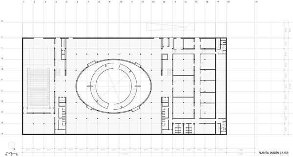
博物馆和附近的同样由建筑师设计,于2001 年建成的卡哈格拉纳达储蓄银行总部融合为一个整体。建筑师塑造了一个大小为60 米 x 120 米,高共三层的裙楼,裙楼上面立着一片薄薄的板楼,这个板楼的高度与不远处的储蓄银行总部大楼高度一致,外观协调统一。建筑中心是一个椭圆形的中央庭院,内布环形斜道,连接起裙楼的三层,形成极有张力的有趣空间。这个椭圆形的中央庭院其尺寸参照了爱尔汗布拉宫查理斯五世皇宫的规模。
此外无法忽略的是,博物馆形象如同城市的大门。博物馆高耸的板楼与卡哈格拉纳达储蓄银行总部建筑的高度和宽度相同,它们形成强有力的意向,如同巨大的屏幕般立在高速公路旁,建筑的表面将完全覆盖大面积的等离子屏幕,向过往的城市流量发送消息,就像伦敦的皮卡迪利广场和纽约的时代广场那样。

安达卢西亚历史博物馆

草图

设计图

平面图

平面图

平面图

平面图

平面图

平面图

平面图
网友评论
(共 0条)查看全部