建筑师: J. Mayer H. Architects

Schlump ONE大厦
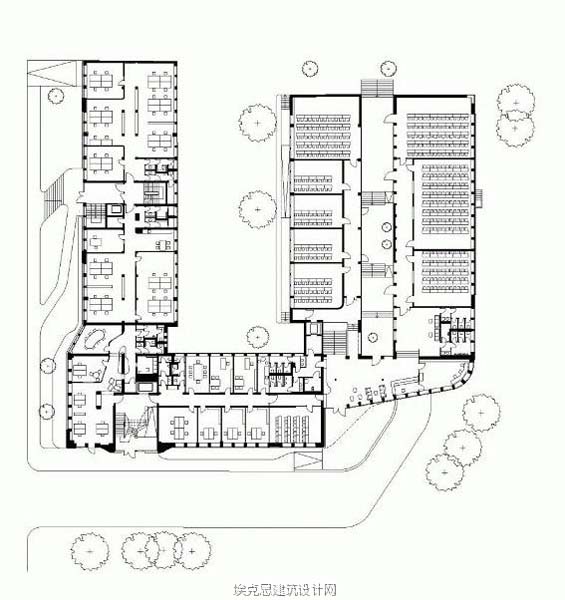
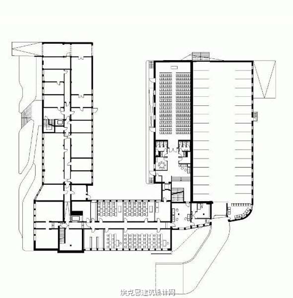
Schlump ONE大厦项目就位于汉堡Eimsbüttel区Schlump地铁站之上。建于20世纪50年代和90年代的原行政大楼经过拆除内部装饰、翻新以及扩建,现已被改造成一座办公大楼,每层有四个可以出租的单元。庭院里原来的数据处理中心被改造成了一所私立大学,还经过扩建,增加了一座新建筑。

Schlump ONE大厦

Schlump ONE大厦
建筑立面经过全面翻新和重新设计,形成了一个独立的单元,自由地演绎了原建筑20世纪50年代的线性设计。立面有机的形式语言在室内得到了延续。项目采用复杂的开放空间规划设计,并设计成了超大的树形雕塑形式。

Schlump ONE大厦

Schlump ONE大厦

Schlump ONE大厦

Schlump ONE大厦

Schlump ONE大厦
网友评论
(共 0条)查看全部