原名称:Singapore villa faber avenue
设计单位:Hyla Architects
位置:新加坡 费伯大道
分类:别墅建筑
内容:实景照片
建筑设计负责人:Han Loke Kwang, Nirun Thawornngamyingsakul, Nussara Sonsart
结构工程师:GNG Consultants Pte Ltd
承包人:Toh Kum Swee Pte Ltd

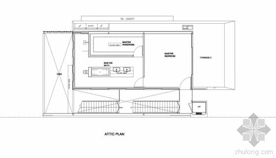
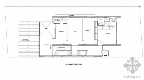
这是由Hyla Architects设计的费伯大道别墅。这个半独立式的别墅共两层,附阁楼。别墅正立面朝西,因此更多的私人空间布置在建筑背面。一系列光滑的垂直铝幕墙为住宅提供了遮阳通风。入口门厅有一个水池和高天花板。楼梯贴着花岗岩复合墙布置,连通3个楼层,包括顶层的主卧室和屋顶花园。

新加坡费伯大道别墅
新加坡费伯大道别墅
新加坡费伯大道别墅
新加坡费伯大道别墅
新加坡费伯大道别墅
新加坡费伯大道别墅
新加坡费伯大道别墅图解
新加坡费伯大道别墅图解
新加坡费伯大道别墅图解
新加坡费伯大道别墅图解
网友评论
(共 0条)查看全部