建筑设计:SBVN Donovan Hill + Jasmax architects
地点:新西兰,奥克兰
年份:2013年
摄影:John Gollings

ASB银行总部位于新西兰奥克兰,是一个遵循可持续建筑规范的办公建筑,采用了一些创新的环境可持续发展设计策略:中庭作为建筑的'肺' - 通过一个独特的漏斗形式,交叉通风。
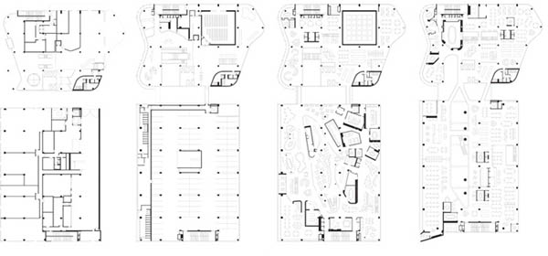
建筑屋顶上漏斗和光反射,捕捉并反射到建筑深处。北立面一个显着的遮荫栽种了一棵土生土长的新西兰树。整个办公大楼共有7层。分为两个单独的建筑体块,并通过一个中央公共区的多层步道相连接。该车道有利于增强行人之间的连通性并提供了一个新的互联公共/私人空间。
从内部设计角度看,最大的特点就是采用了“村落式的互通有无”概念,尽可能增加公共交流空间,使员工在一种“大家庭”的氛围中工作。

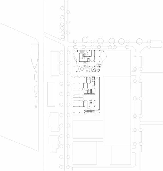
总平图

平面图

剖面图
















网友评论
(共 0条)查看全部