项目名称:春天儿童学习中心(Spring)
建筑师:Joey Ho Design
项目地点:中国 香港
项目面积:697㎡
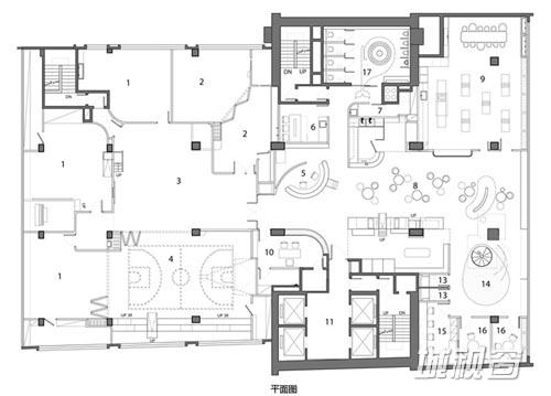
春天儿童学习中心的建立是为了帮助儿童成长,激发他们的学习潜能。以这一理念为指导,设计师提出了双重视角的概念,丰富学习体验。希望通过将儿童和家长的视角相结合,并在空间、家具和细节中表现出来,来建立儿童、家长和教育工作者之间的对话和互动。
整个儿童中心都没有童话式的装饰元素,避免落入俗套,取而代之的是中性的设计,白色、浅绿、浅蓝的色彩运用和木材将大家的思绪带回美好的童年时期。咖啡屋中的树上小屋和秋千的设计灵感来自于户外的绿色植物,丘陵状的设计营造了舒适的阅读和上网空间。
不同的功能空间内设计并放置了两套家具系统,迎合了儿童和成人各自的需求。举例来说,服务台安装有楼梯,使孩子们可以爬上来与员工直接交流沟通。创意厨房依据专业厨房的模式建造而成,并配备有不锈钢工作台和厨房设施。所有的配套设施都是儿童专用尺寸,营造了真正的烹饪氛围。同样地,浴室内也有两种高度的洗手台,并设计成喷泉的形态,令家长和儿童共享同一种设施,进而培养更加亲密的关系。









网友评论
(共 0条)查看全部