

▲保利·未来大都汇规划方案▲
项目位置位于北京昌平未来科学城的南区,作为保利置地“汇”系列,它是国内首个科学城内地铁上盖的大型综合体业态,而这次样板层设计也是为了达成新一代总部办公、联合办公、创意办公的聚集地。重新打破、定义与重组是保利(北京)房地产开发有限公司找到CUN寸DESIGN设计的重要原因。
未来办公?

▲半围合休闲区▲
通常情况下,办公空间从最开始的构成主要服务于管理的制度需要,逐渐发展成人们最初见到的格子间式办公空间,然后随着时代的发展,人们开始对“办公风景(office landscape)”有了新的需求和探索,同时也提出了“移动式”的办公需要。

空间中场所的设计只是满足空间形象的方法,但办公系统则是由“数据”进行相互之间的关联而生成。在CUN寸DESIGN一直整理的办公体系中,对每个办公空间的分析,都是从现代化办公企业在有限空间内的活动行为,即互联网办公、新兴办公、传统办公中不同级别员工的工作状况而进行的分析。

通过数据发现,大部分公司的中层员工,他们在办公桌前面的工作时间占全部工作时间的比例大概是38%,越高级别的员工在办公桌前的工作时间越短,基层员工在办公桌前的工作时间会相对长一些,但比例不会超过50%。从而根据我们整理的数据得到以下的几个思考点。
NO.1:三点构成

CUN寸DESIGN一直在做的事情就是如何让一个空间设计在未来3-5年可以一直延用下去,而不会随时间的流逝而失去价值。
在办公设计中最独特的一个价值就是如何去创造"连接",也就是说在办公场景中寻找最理想的能够同时满足员工之间、员工与公司、公司与外部之间的三种形式的连接。
为此我们在这个空间中设置了三个点位:1.接待点位;2.互联点位;3.服务点位。
A:接待点位

这个点位我们故意去掉了传统的“前厅”死板的设计,鼓励到来的每位客人可以直接跟随视觉进入接待区域,曲面或连续,或交叠,或独立地存在接待区域中,使人漫步其中感受到一种柔和舒适的包围感。


▲前台接待区▲
在前台接待区域设置了半围合的曲线造型组合,也是作为进入空间中第一印象的存在。实体均采用浅色涂料,在带来温和基调的同时创造出一个有机的‘身体’,使前台接待区域以一种较为现代且充满建筑体量的形式自然出现。

设计更多考虑的是形式感带来的空间价值,以轻松的方式让访客感到被重视,并得到企业气质直接获得感,而不是让他们停留在等待区或将他们直接带到会议室。找到适当的平衡点,并提供一个创造持续第一印象的场域。



这里也属于员工的第一空间,是每位员工日常工作开启的点位,不同于传统办公的形式。它集聚了接待、社交、展示多功能的升级空间,成为一种相对开放和相对私密的空间并存状态,也一定程度上解决内部空间的使用压力。
B:互联点位

灵活性的办公环境,使员工随时随地都能找到与其工作相符的环境归属感,这就是“办公互联”。在办公方式+人员搭配组合,提升空间使用效率+提高坪效,降低用户综合成本+灵活省事中形成更加直接有效的工作系统。


空间的新生,不仅仅有视觉的更新,功能聚合如同空间呼吸被更新迭代。半围合的休闲区也是为此诞生,作为关联点位参与办公空间动态体验的一个重要节点区域。


木作的旋转起伏,仿佛是一个办公机器的核心齿轮,利用创新的工作环境给客户和员工提供双向的环境服务,通俗而言,无论是员工,还是客户,都可以在这个空间环境里,小憩一刻或集中的消化掉小组任务。
C:服务点

我们的社会职业观念已发生转变,员工更愿意追求工作与生活的平衡,希望在工作中也能享受到生活中有的舒适与便利。

另一方面,随着入驻企业向多样化发展,对个性化与高端兼具,能提供优质社群生态与软硬件服务也是未来办公空间的设计方向。


服务点位的设置主要以休闲洽谈和智能办公为主,因为这个空间也有着样板间的属性。在这个位置上,设计师也考虑到参观客户在体验到整个办公系统的同时,也可以在服务点位进行商务洽谈的功能。既是办公场域也是销售服务的空间。

在这里办公空间绝不仅仅是一个办公的场所,而是一种向外界、向客人释放信息的工具。

NO.2: 三点辐射
三个点位的成立,正好可以完整的辐射整个空间系统。打破固习,摆脱定势,将三点构成的功能相互融合在一起,有序、活力、创造在不同区域自如切换。

小空间的建筑表现手法,模块组合、咬合关系,外加一些线型灯的元素,使得空间线条简洁、利索。

核心筒的黑色调的配色,拥有科技感的同时也让使用者保持思想的高度集中。

CUN寸DESIGN为未来大都汇定制了一款环形灯具,突破传统的形体关系,丢掉繁复与堆砌造型手法设计。在满足于光与环境的基本属性下,让它更多结合空间理性功能与调性融合,用简单的元素表达出它所属的空间氛围。


NO.3:一条VIP
在空间与空间之间不仅仅是利用设计媒介分割,而且利用具有空透、连通性的元素进行分隔,既空间的分割合理。

一条vip通道,指的是它是进入总裁办公和休闲区的一个合理分割。它的定制化存在重新定义了总裁办公核心价值,将会议,接待,财务管理的办公元素集合在vip通道的一侧,这样在整体办公的环境下,也有着高效独立的高层办公组合空间。


总裁接待区采用了半通透的设置,满足私密性的状态下,给到内部最好的采光度。





▲总裁会客区▲
几何框架式的柜体设计放置在最合适的地方,蓝色亚克力的材质定制,让宝蓝色在整个黑白灰相间的空间里更加个性化的表现。


▲总裁室玄关▲

▲总裁休闲区▲

▲总裁办公室▲
NO.4:两线再利用
往往我们在办公空间设计中,会忽略掉窗户到筑跨间的面积。我们将到窗1.5m的进深重新利用起来,并在柱子上设计了不同长度的悬挑体块,弱化柱子在空间中的独立感。

并在室内空间两侧形成体量并得以延续,这里可以完成对自由办公的需求。


NO.5:办公未来!
我们生活在这样一个需要社交空间的时代,放眼望去我们周遭众多的办公场所,重复的格子,意外的转折,一种统一秩序法则所带来的陌生与冷漠,像潮水般漫过了越盖越高的办公大楼,也漫过了成千上万热血的心。


如今的我们在一天最长的时间段内相聚其中,得到设计数据与逻辑布局之后的良好体验感,并感受到自己的价值。让办公空间成为提供真切“激发灵感”的气氛场,这就够了,这就是未来!

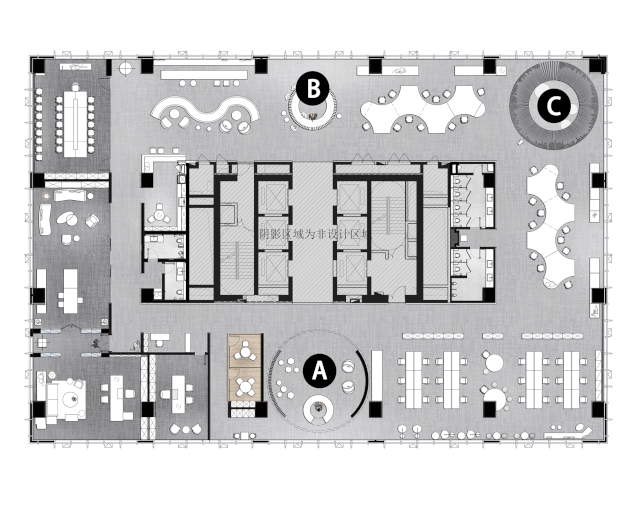
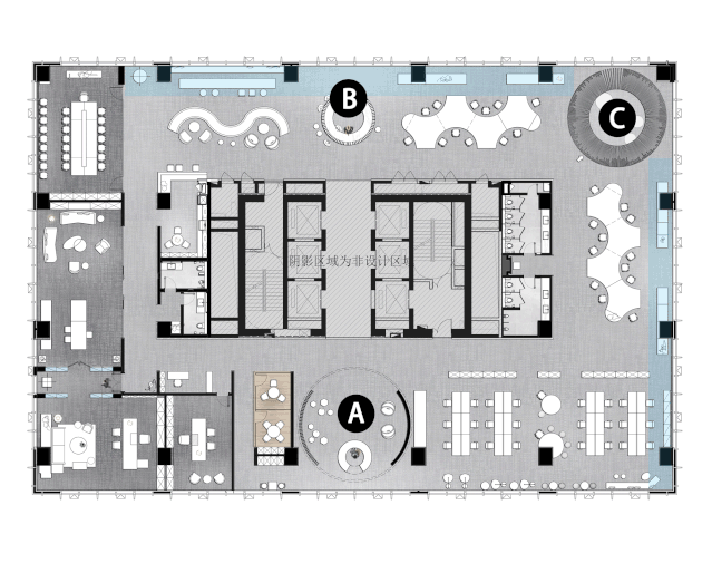
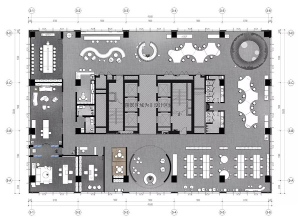
项目平面图

网友评论
(共 0条)查看全部