当前位置:首页 > 智慧商学院 > 寻方案 > 正文

这是一个绿油油的办公室

发布时间: 2015-12-08 10:05:45 编辑:crystal 来源: 优尔城 浏览次数:
建筑设计师phongphat ueasangkhomset对泰国电视制作公司“绿色26”的办公室进行了全面改造。Ueasangkhomset希望能连接大楼过去和现在的用途。原本不用的后院空间变身成为新的室内庭院。绿色被大面积运用在室内因为这是业主最爱的颜色,也是公司的名字。同时ueasangkhomset希望通过它来展现了整个空间的自然元素。



滑动门与工作空间


主要办公空间

大厅

绿色充满了整个空间

可以观赏室内庭院的走廊

“绿色26”室内

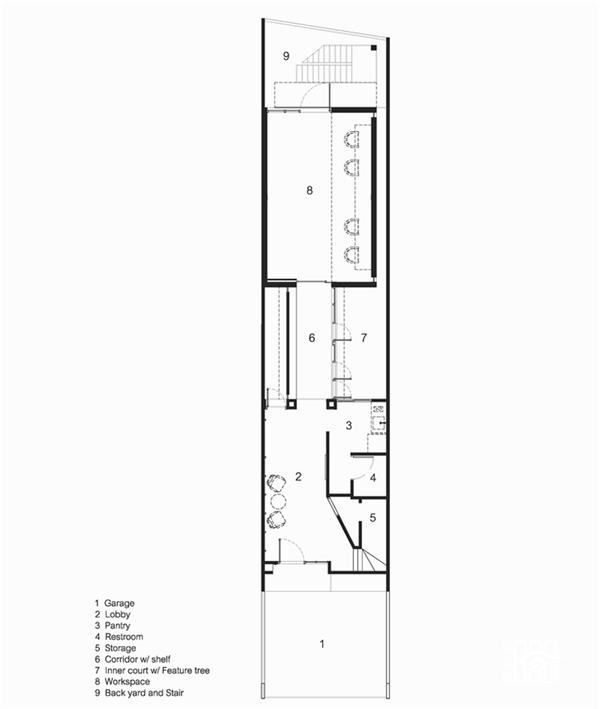
平面图
 

 

城视窗

空间艺术设计与规划专业视频媒体平台,致力于科学人居从空间规划→艺术设计→精准选材→可持续发展等一系列产业链环节的无缝对接与解决方案的整合传播。在微信公众账号中搜索“城视窗”或“citiais”,或用手机扫描左方二维码。我们将为您推荐行业最新、最热、最好玩儿的资讯!

 

关键字:绿油油,办公室,设计
相关新闻 more>>

网友评论

(共 0条)查看全部
验  证  码: 只允许输入140个字
(网友评论仅供其表达个人看法,并不表明本站同意其观点或证实其描述。)
Art
友情链接
>>