▼建筑外观


▼项目与神社隔街相望

项目为一位摄影师的工作室,画廊兼住宅。业主希望将生活空间和工作空间融合在一起,因此建筑师放弃了按照功能划分空间,而是根据使用者希望的生活方式对平面进行了相应的设计。
▼建筑后部,二层生活空间设有大面积开窗和阳台

一条幽暗的小径从建筑入口处一直通向室内,将游客引到被天光照亮的画廊。画廊和庭院相接的墙面上设有开窗,将室外景色如画作一般展示在人们面前。空间尺度和自然光照相得映彰,体现了一种来自于日常生活的愉悦感,也可以供摄影取景使用。
▼小径通向建筑入口


▼幽暗的入口走道,尽头为被天光照亮的画廊

▼画廊,空间以白色为主,简洁明亮


▼天窗在画廊中落下丰富的光影


▼框景

狭长的通道贯穿整个画廊,但其功能并不仅限于过道,它还是一条用来展示艺术作品的展廊。走廊的主题随着视角转变而发生变化,不同的层高以及自然光洒下的光影带来美丽的视觉效果。大厅位于建筑中央,不同层高的空间交汇于此。这里还设有卫生间,吧台和楼梯间等生活必须空间,并且与庭院直接相连,功能与美景并重。
▼从画廊看向门厅

▼不同高度的走廊将空间联系在一起,展示不同作品



▼位于走廊尽头的房间


▼大厅,设有生活功能


▼木材内装与白色的工作室形成对比

建筑中的空间尺度丰富多变,使其可以同时承担居住和摄影工作室两种功能。阳光从高处的天窗射入并照亮整个空间,让摄影师可以在自然光照下进行拍摄。摄影器材,古董家具,乐器和艺术作品遍布于空间的各个角落,体现了摄影师本人的审美感受,为新的创作活动提供灵感。
▼摄影工作室,大面积开窗带来充足的自然光照


▼丰富的尺度和道具为创作提供灵感


▼从工作室看向庭院和画廊入口

▼夜景

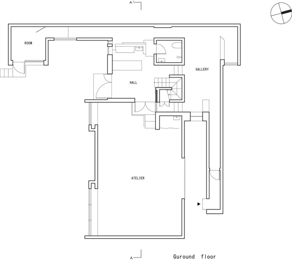
▼一层平面图

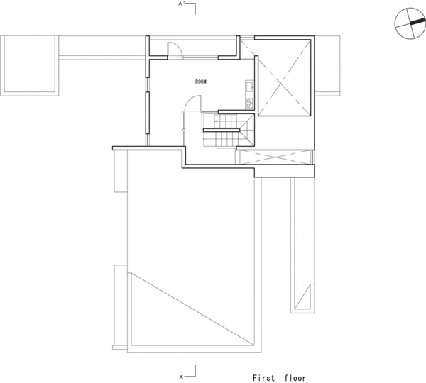
▼二层平面图

▼剖面图

项目信息
设计公司:FORM/Kouichi Kimura Architects
项目位置:日本,滋贺
项目类型:住宅、建筑工作室
项目年份:2017
项目面积:420,94m²
主要材料:木材、混凝土、玻璃钢
摄影:Yoshihiro Asada、Norihito Yamauchi
网友评论
(共 0条)查看全部