山水建筑:建筑与山水环境融合,形成一幅和谐共生的山水画卷
▼融于自然的建筑群落


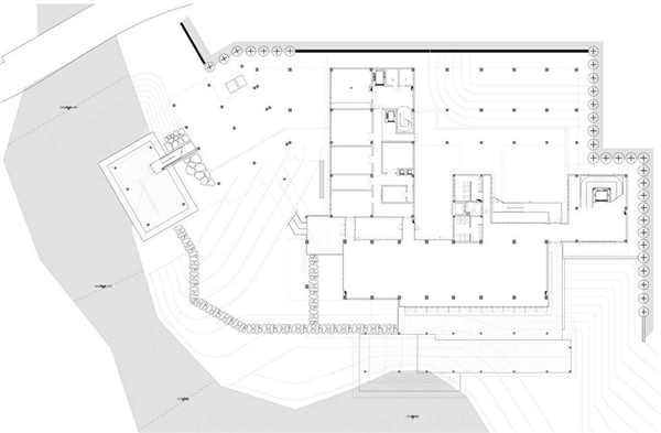
▼总平面图

▼模型图

院落空间:宜人尺度的院落空间营造书院式的学院氛围
总体布局考虑集中与分散的组织关系,以现代的空间布局手法融合广西传统建筑聚落空间,各个功能组团以多个小体量建筑组合形成,有利于顺应山地地势,层叠错落,宜人尺度的院落空间,外有水景,内有庭院,室内外空间流动,营造书院式的学院氛围。
▼错落有致的建筑群




▼建筑围合出内部小景





地域文化与建筑细部:现代技术与传统材料的运用传递朴素适宜的地域文化气息
建筑总体风格简洁、朴实,采用现代技术手段,运用当地传统建筑材料青砖、红砖、清水混凝土、木结构、小青瓦、毛石墙等的表面质感、色彩肌理传递朴素、适宜、低调的地域文化气息,诠释现代建筑技术和传统建筑材料的完美结合。
▼内部空间




▼运用传统建筑材料


▼手绘图

▼设计构思

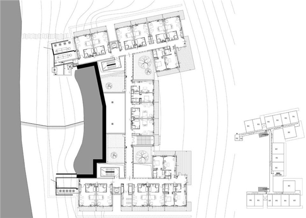
▼平面图




▼立面图

▼剖面图





项目信息
项目名称:百色干部学院
建筑事务所:华东建筑设计研究总院
项目主持人:汪孝安
设计负责人:武扬
主创建筑师:汪孝安、武扬、陈磊、孔君涛、赵曜、彭麟、李和远、陈开兵、苏颖、张冰洁、李合生、佘明松
项目地址:中国 广西 百色
项目完成年份:2017年
建筑面积(平方米):85428平方米
摄影师:庄哲
网友评论
(共 0条)查看全部