
经过再生的科尔察剧院:在阿尔巴尼亚共产主义与后斯大林主义的俄罗斯发生冲突之前,科尔察剧院最初是一份来自莫斯科的礼物。
在去除了苏联古典建筑风格后,科尔察剧院又回到了具有巴尔干风格的艺术风格(Balkan Art déco)中来。

概念图

这大型的三角形剧场广场,足够用来举行民族游行,当2009年 BOLLES+WILSON 建筑事务所在科尔察历史中心项目的国际设计竞赛中获胜时,这里就注定要被重新规划。现在几乎完全实现的总体规划的主轴是乔治大街,这就是新的城市中心,在剧院广场的尽头有一条人行道(现在是一间由BOLLES+WILSON 建筑事务所在2014年设计建设的天空红酒吧)—— 剧院广场是BOLLES+WILSON 建筑事务所 2009年总体规划的最后阶段。位于中央人行大道尽头的钟楼可以作为一个观景台,供市民来欣赏这座历史悠久城市的精妙之处。

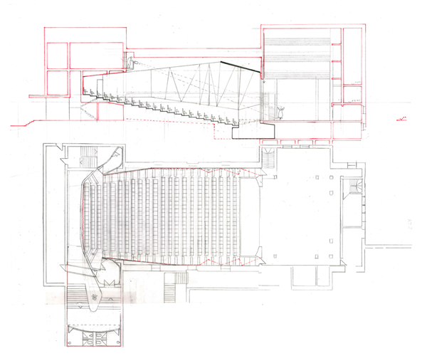
接下来就是剧院的设计 —— 新方案简直就是让剧院换了一张面孔(也可以说是许多新面孔)。 然后再通过将一个两层的礼堂转换成一个大的倾斜的平面,这可以增加座位的容量。



BOLLES+WILSON 建筑事务所在阿尔巴尼亚的所有项目的设计方法都和 Peter Wilson 手绘制图概念相关,并都会由一家当地的办公室来执行:在该案例中是 DEA Studio 事务所。 有一种方法可以避免对承包商们因为没有细节而摸不着头脑,彼得·威尔逊(Peter Wilson)将细节1:1地直接画在了墙上。

平面图
喜剧和悲剧的面具属于戏剧肖像学,在这里有140个较小的面具——观众,然后由当地的陶艺师 Vasillaq Kolevica 进行手工制作。这些个性化面具每个都是80厘米高,而且每一个都放在艺术门面上的装饰方格里面。黑色的是凸起得到悲剧面具,白色的是凹下的滑稽面具——这些的建筑理念也都被画了出来。
喜剧面具放在了边上的架子上(现在里面有一个大楼梯),那是一个包裹着黑色玄武岩的立方体。面具的四周是不锈钢轮廓,其中的白色石膏凹痕是凹进。悲剧面具上的黑色不祥轮廓是由泡沫塑料制成的。边缘半径也画了草图,但最终用面包刀进行一对一的演示是必要的,以便将这个想法传给他的建筑师。 而外表则再次涂上了类似日本“无戏”面具的灰泥。

喜剧面具
建筑师 Bolles + Wilson
地址 科尔察,阿尔巴尼亚
其他参与者 DEA Studio, local potter Vasillaq Kolevica made the masks
项目年份 2017年
摄影师 Roman Mensing
网友评论
(共 0条)查看全部