
都柏林Shangan Avenue大街公租房
项目名称:都柏林Shangan Avenue大街公租房(Social Housing in Shangan Avenue)
建筑师:FKL architects建筑事务所
项目地点:爱尔兰,都柏林
项目面积:3746.0㎡
项目时间:2013年
摄影:FKL architects建筑事务所公关部
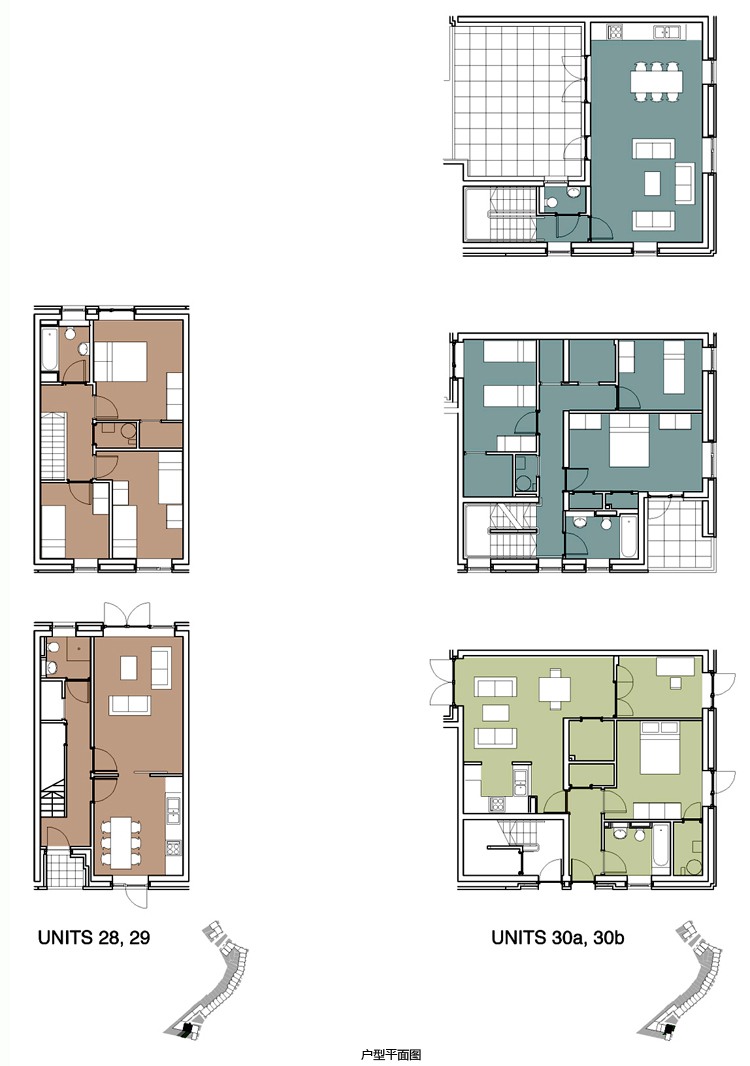
此项目位于Shangan Avenue大街旁边一处狭长的建筑基地上,这样的地形很大程度上决定了我们最终采用怎样的建筑外观。设计的原则也非常明确:在特定的基地上有一种严肃、谨慎的态度和方法打造一个与当地地理文脉高度融合的建筑项目。根据建筑基地的深度,我们对既定的线性设计做了相应的调整:我们将传统的3层楼房的设计改造成两层半的楼层设计;房顶也根据不同的楼层起伏进行了相应的调整,所有位于三层的窗户全部设计在面向街角的一侧。

都柏林Shangan Avenue大街公租房

都柏林Shangan Avenue大街公租房

都柏林Shangan Avenue大街公租房

都柏林Shangan Avenue大街公租房

都柏林Shangan Avenue大街公租房

都柏林Shangan Avenue大街公租房

都柏林Shangan Avenue大街公租房

都柏林Shangan Avenue大街公租房

都柏林Shangan Avenue大街公租房







网友评论
(共 0条)查看全部