
海滩模块(Beach Modules)
项目名称:海滩模块(Beach Modules)
建筑师:Màrius Quintana Creus
项目地点:西班牙 巴塞罗那
项目时间:2010年
摄影:Adrià Goula
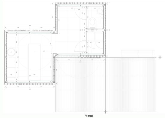
海边新元素的设计以公共区域和设施为出发点来装点海滩,提供急救护理区、洗手间、残疾人士洗手间和更衣室、饮料和冰淇淋凉亭、废物和回收集装箱、服务台和警察局等设施。
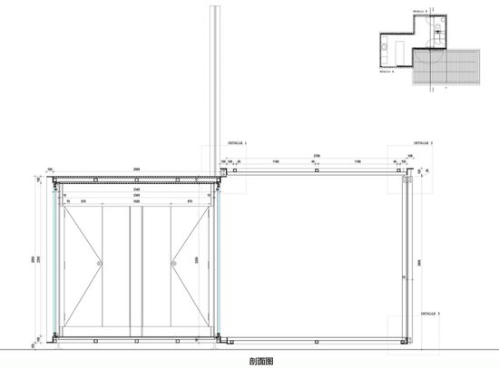
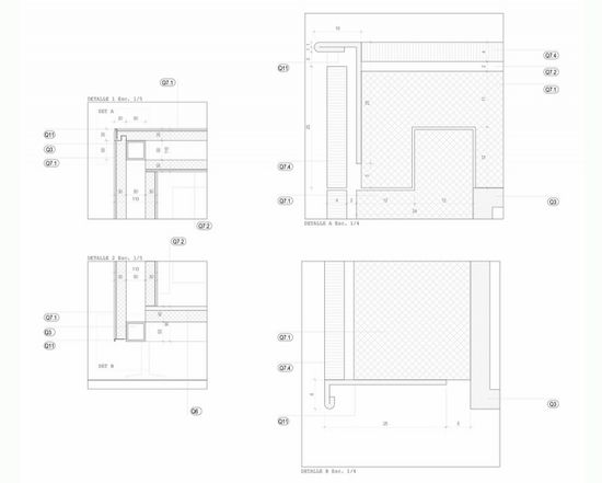
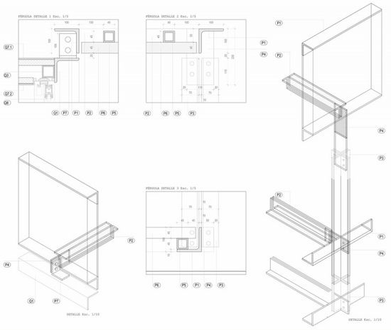
就材料和形态而言,该公共区域有共同的因素以适应场地环境和景观。此外,这些因素采用相同的基本建筑系统,通过集合和重复,保证不同的功用,并尽量少地占用沙滩区域。在从城市到大海的方向上还需要保持较高的视觉透明性,以建立人行漫步道和海滩之间透明的视觉关系。
所有的元素都采用立方体的形态,以使不同的项目单元外形统一。立方体元素融入了沙滩景观中,并显示了对环境的尊重。尽管它不是一种自然或有机形态,但却是在以大海和沙滩为主的广阔景观中,对岩石、洗澡小屋和海边避难所等的高度抽象概括。立方体主要由陶瓷马赛克包层材料制作而成,成为一大特色。

海滩模块(Beach Modules)

海滩模块(Beach Modules)

海滩模块(Beach Modules)

海滩模块(Beach Modules)

海滩模块(Beach Modules)

海滩模块(Beach Modules)

海滩模块(Beach Modules)

海滩模块(Beach Modules)

海滩模块(Beach Modules)

海滩模块(Beach Modules)






网友评论
(共 0条)查看全部