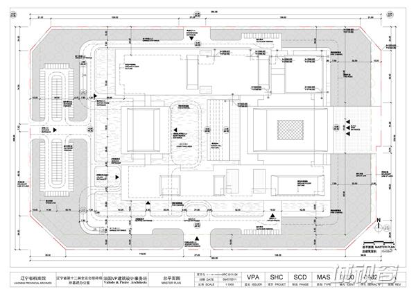
档案馆位于市民广场西南角,与博物馆、科技馆、图书馆共同组成辽宁省十二运规划中重要的文化建筑群,未来将会成为辽宁地区重要的地标性建筑,并为推动当地文化建设提供优良的基础。档案馆的设计延续了整体四馆规划中对自然肌理的表达,无论是宏观或是微观,始终贯穿于整个建筑的设计之中。






档案馆
档案馆挑出的露台将建筑物内不同功能的单体巧妙组合,东西向的连续挑出多于南北,露台之间错落有致,既增加了内部视线的延展性,又减少了建筑外部视觉的突兀感,将建筑内部空间与外部环境有机融合在一起。档案馆的挑出露台与图书馆、博物馆和科技馆的挑檐遥相呼应、相辅相成,自然的融入浑南新城市民广场的大背景,把档案馆的文化瑰宝展示在公众面前,将馆区与环境整合为一个有机的生态整体。
作为全国第三大档案馆,辽宁省档案馆有很多明清带珍贵文物,我们专门为档案馆设计了一个档案储藏塔来保存这些珍贵的展品,是四栋建筑中最高的一个标志性展示平台,成为了整个广场的至高点,由于辽宁省文化四馆的整体高度相差无几,而突出的档案贮藏塔则打破了广场的沉静,成为文化四馆的标志。贮藏塔的外部设计也有别于其它建筑,塔外围护体系用抓点透明的玻璃幕墙将内侧带有中国古文化的文字展示出来,同时内侧的背景墙采用了中国红这一比较喜庆的色彩,和白色的挑檐形成鲜明的对比,突出了“珠宝盒”在设计中的重要地位。
档案馆外观的处理则源于中国古代四大发明之一的‘活字印刷术’的理念,将活字印刷的排版样式抽象地表达在建筑设计的每一个角落,通过凸雕汉字在灰色的石材上的形式把文化色彩表达出来。
档案馆为围合型建筑布局,办公、阅览区域都有良好的视线和采光,中心花园从视线上联系主入口下沉式展厅,提取中式园林借景的设计手法,合理引入水景,营造出建筑源于园林生于园林,相映成趣、相得益彰的设计氛围。
作为一项服务于市民的功能型建筑,设计师同样力求将档案馆场馆规划为以人为本的建筑,不仅有其文化历史特征,同时也充分体现出文化类建筑的人文特征,把公众对建筑功能的需求和以教育为目的职能完美的结合在一起。
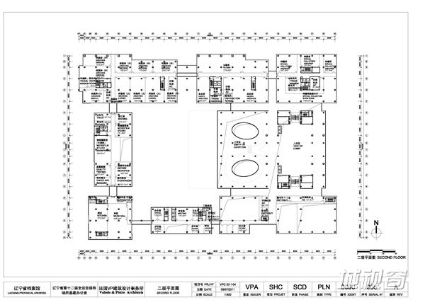
首层档案馆服务大厅位于东侧正对浑南新城市民广场,主要用于集散、分流等使用,同时又起到串连展厅、对外学术交流和公共借阅三个对外服务空间的作用。主立面整体式玻璃幕墙、及屋顶天窗均对自然光进行了合理的利用。既符合档案馆大气恢弘的品位,也较好体现了公众亲和力。
馆内展厅采用下沉式设计,东西两侧为全玻璃幕墙,作为入口门庭视线的延伸,与中庭内的绿化景观相呼应,阳光充足,视线良好。展厅体现楼中楼的设计理念,使其不仅满足了展览功能需求,自身也成为了展示的一部分。增强了建筑的可读性,丰富了观者的感官享受,加深其对展品的关注与理解。
档案馆设有专门的对外学术交流区,这一区域位于建筑体东南侧,与公共大厅相对独立,平行布局,由多功能厅、学术报告厅、国际学术交流厅三部分组成,高度均为9米,视线良好,为人们交流提供充足的空气流通空间,减少压抑感。 其中学术报告厅为升起式看台,为使用者提供更加智能便捷的交流场所。而阅览区域同样集中式采用9米挑高的大空间并通过悬挑露台营造了动静分离、内外渗透的阅览空间。环廊式和集中式多重布局使环廊区与入口大厅形成了良好的视线交流。
“文化主体服务于未来城市”这一理念始终贯穿于辽宁省文化四馆的规划和档案馆的设计工作当中。设计师希望作品既能与城市氛围相融合,又能为城市带来源源不断的新活力,最核心的是满足使用者和参观者的不同需求,能为普通市民提供一个实用的、高质量的、而又赏心悦目的文化功能性建筑,让建筑真正拥有生命。








网友评论
(共 0条)查看全部