当前位置:首页 > 智慧商学院 > 解析名案例 > 正文

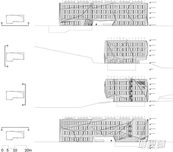
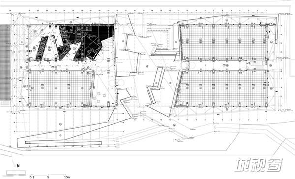
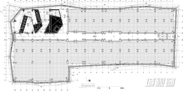
天地间的一颗宝石:晶体E8

发布时间: 2014-09-18 16:47:31 编辑:Daisy 来源: 原创 浏览次数:



关键字:E8大楼,建筑设计,城视窗
相关新闻 more>>

网友评论

(共 0条)查看全部
验  证  码: 只允许输入140个字
(网友评论仅供其表达个人看法,并不表明本站同意其观点或证实其描述。)
Art
友情链接
>>