当前位置:首页 > 智慧商学院 > 解析名案例 > 正文

美国阿斯彭艺术博物馆

发布时间: 2014-09-22 14:53:00 编辑:crystal 来源: 筑龙建筑设计网 浏览次数:








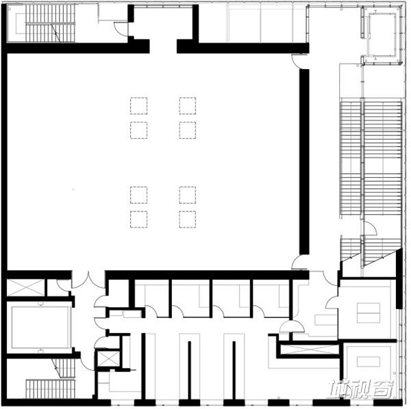
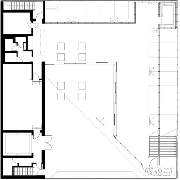
平面图




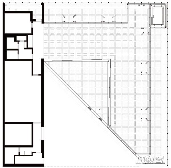
剖面图

关键字:美国,阿斯彭艺术博物馆,博物馆,建筑,设计
相关新闻 more>>

网友评论

(共 0条)查看全部
验  证  码: 只允许输入140个字
(网友评论仅供其表达个人看法,并不表明本站同意其观点或证实其描述。)
Art
友情链接
>>